Elected Officials
Courts
Departments
Initiatives
Open Government
About
Login / Register
Home
/
Property & Tax Records
/
Property Records
/
Property & Tax Search
/
Parcel Profile
/
Print View
Search for Another Parcel
Parcel Profile
Historical Card
Sketches
Photos
Tax Map
Taxes
Print View
Print This Page
Address: 902 E 22 ST
Parcel: 18050037012100
Parcel Profile
Address
902 | E | 22 | ST
Street Status
PAVED | SIDEWALK
School District
CITY OF ERIE SCHOOL
Acreage
0.0891
Classification
R
Land Use Code
SINGLE FAMILY
Legal Description
902 E 22 ST 40 X 97
Square Feet
2065
Topo
LEVEL
Utility
ALL PUBLIC
Zoning
Please contact your municipal zoning officer
Deed Book
2019
Deed Page
006603
2026 Tax Values
Land Value / Taxable
5,300 / 5,300.00
Building Value / Taxable
22,790 / 22,790.00
Total Value / Taxable
28,090 / 28,090.00
Clean & Green
Inactive
Homestead Status
Active
Farmstead Status
Inactive
Lerta Amount
0
Lerta Expiration Year
0
Residential Data
Card 1
Style
OLD STYLE
Basement
FULL
Year Built
1901
Exterior Wall
FRAME
Total Living Area
2065
Full Baths
1
Half Baths
0
Fuel Type
GAS
Heating
CENTRAL
Heating System
FORCED AIR
Stories
2.0
Total Bedrooms
3
Total Family Rooms
0
Total Rooms
7
Fireplaces
0
Other Buildings & Yards
Description
Built
Width
Length
Area
FRAME OR CB DETACHED GARAGE
1916
20
22
440
Sales History
Sale Date
Type
Price
Book / Page
Other Info
4/16/2019
LAND & BUILDING
30000
2019 / 006603
SPECIAL WARRANTY DEED
8/10/2010
LAND & BUILDING
20000
2010 / 019422
SPECIAL WARRANTY DEED
5/10/1994
0
0333 / 1265
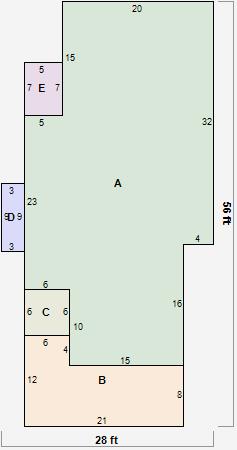
Parcel Sketches
Residential Card 1
A
MAIN
1001 square feet
B
OFP OPEN FRAME PORCH
192 square feet
C
1S FR ONE STORY FRAME
36 square feet
D
UNFIN BSMT BASEMENT UNFINISHED 1S FR ONE STORY FRAME
27 square feet
E
EFP ENCL FRAME PORCH
35 square feet
Parcel Images