Elected Officials
Courts
Departments
Initiatives
Open Government
About
Login / Register
Home
/
Property & Tax Records
/
Property Records
/
Property & Tax Search
/
Parcel Profile
/
Print View
Search for Another Parcel
Parcel Profile
Historical Card
Sketches
Photos
Tax Map
Taxes
Print View
Print This Page
Address: 902 E 24 ST
Parcel: 18050038012000
Parcel Profile
Address
902 | E | 24 | ST
Street Status
PAVED | SIDEWALK
School District
CITY OF ERIE SCHOOL
Acreage
0.0826
Classification
R
Land Use Code
TWO FAMILY
Legal Description
902 E 24 ST 40 X 90
Square Feet
1568
Topo
LEVEL
Utility
ALL PUBLIC
Zoning
Please contact your municipal zoning officer
Deed Book
2018
Deed Page
015115
2026 Tax Values
Land Value / Taxable
5,200 / 5,200.00
Building Value / Taxable
38,700 / 38,700.00
Total Value / Taxable
43,900 / 43,900.00
Clean & Green
Inactive
Homestead Status
Inactive
Farmstead Status
Inactive
Lerta Amount
0
Lerta Expiration Year
0
Residential Data
Card 1
Style
OLD STYLE
Basement
FULL
Year Built
1917
Exterior Wall
BRICK
Total Living Area
1568
Full Baths
1
Half Baths
0
Fuel Type
GAS
Heating
CENTRAL
Heating System
FORCED AIR
Stories
2.0
Total Bedrooms
4
Total Family Rooms
0
Total Rooms
7
Fireplaces
0
Other Buildings & Yards
Description
Built
Width
Length
Area
FRAME OR CB DETACHED GARAGE
1980
12
20
240
Sales History
Sale Date
Type
Price
Book / Page
Other Info
7/27/2018
LAND & BUILDING
12790
2018 / 015115
DEED
5/11/2018
LAND & BUILDING
2943
2018 / 008930
SHERIFF'S DED
10/9/2001
LAND & BUILDING
33000
817 / 1191
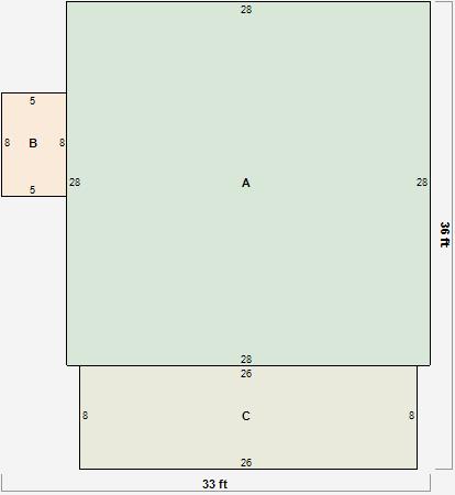
Parcel Sketches
Residential Card 1
A
MAIN
784 square feet
B
OMP OPEN MASONRY PORCH
40 square feet
C
OMP OPEN MASONRY PORCH
208 square feet
Parcel Images
Please note:
this tab is for informational purposes only and may not show all delinquencies, see the Taxes tab for more accurate delinquent taxes due.