Elected Officials
Courts
Departments
Initiatives
Open Government
About
Login / Register
Home
/
Property & Tax Records
/
Property Records
/
Property & Tax Search
/
Parcel Profile
/
Print View
Search for Another Parcel
Parcel Profile
Historical Card
Sketches
Photos
Tax Map
Taxes
Print View
Print This Page
Address: 944 E 24 ST
Parcel: 18050038013000
Parcel Profile
Address
944 | E | 24 | ST
Street Status
PAVED | SIDEWALK
School District
CITY OF ERIE SCHOOL
Acreage
0.1240
Classification
R
Land Use Code
SINGLE FAMILY
Legal Description
944 E 24 ST 40 X 135
Square Feet
1652
Topo
LEVEL
Utility
ALL PUBLIC
Zoning
Please contact your municipal zoning officer
Deed Book
2025
Deed Page
013772
2025 Tax Values
Land Value / Taxable
5,600 / 5,600.00
Building Value / Taxable
37,200 / 37,200.00
Total Value / Taxable
42,800 / 42,800.00
Clean & Green
Inactive
Homestead Status
Inactive
Farmstead Status
Inactive
Lerta Amount
0
Lerta Expiration Year
0
Residential Data
Card 1
Style
OLD STYLE
Basement
FULL
Year Built
1903
Exterior Wall
ALUMINUM/VINYL
Total Living Area
1652
Full Baths
1
Half Baths
0
Fuel Type
GAS
Heating
CENTRAL
Heating System
FORCED AIR
Stories
2.0
Total Bedrooms
3
Total Family Rooms
0
Total Rooms
7
Fireplaces
0
Other Buildings & Yards
No OBY Data Found
Sales History
Sale Date
Type
Price
Book / Page
Other Info
8/14/2025
LAND & BUILDING
26000
2025 / 013772
QUIT CLAIM DEED
5/27/2021
LAND & BUILDING
28000
2021 / 013275
SPECIAL WARRANTY DEED
10/5/2001
LAND & BUILDING
42500
0815 / 0887
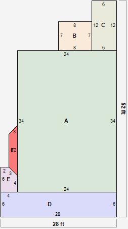
Parcel Sketches
Residential Card 1
A
MAIN
816 square feet
B
WDDCK WOOD DECKS
56 square feet
C
EFP ENCL FRAME PORCH
72 square feet
D
OMP OPEN MASONRY PORCH
168 square feet
E
EMP ENCL MASONRY PORCH
22 square feet
F
FROVR FRAME OVERHANG
20 square feet
Parcel Images