Elected Officials
Courts
Departments
Initiatives
Open Government
About
Login / Register
Home
/
Property & Tax Records
/
Property Records
/
Property & Tax Search
/
Parcel Profile
/
Print View
Search for Another Parcel
Parcel Profile
Historical Card
Sketches
Photos
Tax Map
Taxes
Print View
Print This Page
Address: 2304 EAST AVE
Parcel: 18050038013300
Parcel Profile
Address
2304 | EAST | AVE
Street Status
PAVED | SIDEWALK
School District
CITY OF ERIE SCHOOL
Acreage
0.0996
Classification
R
Land Use Code
SINGLE FAMILY
Legal Description
2304 EAST AVE 70 X 62
Square Feet
1604
Topo
LEVEL
Utility
ALL PUBLIC
Zoning
Please contact your municipal zoning officer
Deed Book
1288
Deed Page
0702
2026 Tax Values
Land Value / Taxable
5,400 / 5,400.00
Building Value / Taxable
38,000 / 38,000.00
Total Value / Taxable
43,400 / 43,400.00
Clean & Green
Inactive
Homestead Status
Active
Farmstead Status
Inactive
Lerta Amount
0
Lerta Expiration Year
0
Residential Data
Card 1
Style
OLD STYLE
Basement
FULL
Year Built
1904
Exterior Wall
COMPOSITION
Total Living Area
1604
Full Baths
1
Half Baths
0
Fuel Type
GAS
Heating
CENTRAL
Heating System
FORCED AIR
Stories
2.0
Total Bedrooms
3
Total Family Rooms
0
Total Rooms
6
Fireplaces
0
Other Buildings & Yards
Description
Built
Width
Length
Area
FRAME OR CB DETACHED GARAGE
1904
16
20
320
Sales History
Sale Date
Type
Price
Book / Page
Other Info
11/18/2005
LAND & BUILDING
0
1288 / 0702
TAX DEED
7/11/1995
0
0392 / 0529
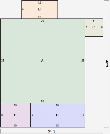
Parcel Sketches
Residential Card 1
A
MAIN
784 square feet
B
EFP ENCL FRAME PORCH
72 square feet
C
UNFIN BSMT BASEMENT UNFINISHED 1S FR ONE STORY FRAME
36 square feet
D
OFP OPEN FRAME PORCH
144 square feet
E
EFP ENCL FRAME PORCH
80 square feet
Parcel Images
Please note:
this tab is for informational purposes only and may not show all delinquencies, see the Taxes tab for more accurate delinquent taxes due.