Elected Officials
Courts
Departments
Initiatives
Open Government
About
Login / Register
Home
/
Property & Tax Records
/
Property Records
/
Property & Tax Search
/
Parcel Profile
/
Print View
Search for Another Parcel
Parcel Profile
Historical Card
Sketches
Photos
Tax Map
Taxes
Print View
Print This Page
Address: 906 E 23 ST
Parcel: 18050038021300
Parcel Profile
Address
906 | E | 23 | ST
Street Status
PAVED | SIDEWALK
School District
CITY OF ERIE SCHOOL
Acreage
0.0758
Classification
R
Land Use Code
SINGLE FAMILY
Legal Description
906 E 23 ST 33 X 100
Square Feet
1380
Topo
LEVEL
Utility
ALL PUBLIC
Zoning
Please contact your municipal zoning officer
Deed Book
1085
Deed Page
0627
2026 Tax Values
Land Value / Taxable
5,100 / 5,100.00
Building Value / Taxable
32,740 / 32,740.00
Total Value / Taxable
37,840 / 37,840.00
Clean & Green
Inactive
Homestead Status
Active
Farmstead Status
Inactive
Lerta Amount
0
Lerta Expiration Year
0
Residential Data
Card 1
Style
OLD STYLE
Basement
FULL
Year Built
1898
Exterior Wall
FRAME
Total Living Area
1380
Full Baths
1
Half Baths
0
Fuel Type
GAS
Heating
CENTRAL
Heating System
FORCED AIR
Stories
2.0
Total Bedrooms
3
Total Family Rooms
0
Total Rooms
6
Fireplaces
0
Other Buildings & Yards
No OBY Data Found
Sales History
Sale Date
Type
Price
Book / Page
Other Info
11/10/2003
LAND & BUILDING
46000
1085 / 0627
DEED
12/19/1974
0
1134 / 0064
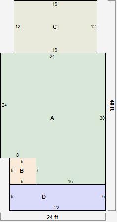
Parcel Sketches
Residential Card 1
A
MAIN
672 square feet
B
1S FR ONE STORY FRAME
36 square feet
C
WDDCK WOOD DECKS
228 square feet
D
OFP OPEN FRAME PORCH
132 square feet
Parcel Images