Elected Officials
Courts
Departments
Initiatives
Open Government
About
Login / Register
Home
/
Property & Tax Records
/
Property Records
/
Property & Tax Search
/
Parcel Profile
/
Print View
Search for Another Parcel
Parcel Profile
Historical Card
Sketches
Photos
Tax Map
Taxes
Print View
Print This Page
Address: 1051 E 25 ST
Parcel: 18050042010600
Parcel Profile
Address
1051 | E | 25 | ST
Street Status
PAVED | SIDEWALK
School District
CITY OF ERIE SCHOOL
Acreage
0.1550
Classification
R
Land Use Code
TWO FAMILY
Legal Description
1051 E 25 ST 50 X 135
Square Feet
2613
Topo
LEVEL
Utility
ALL PUBLIC
Zoning
Please contact your municipal zoning officer
Deed Book
2011
Deed Page
006212
2026 Tax Values
Land Value / Taxable
6,000 / 6,000.00
Building Value / Taxable
22,950 / 22,950.00
Total Value / Taxable
28,950 / 28,950.00
Clean & Green
Inactive
Homestead Status
Inactive
Farmstead Status
Inactive
Lerta Amount
0.00
Lerta Expiration Year
2025
Residential Data
Card 1
Style
OLD STYLE
Basement
FULL
Year Built
1892
Exterior Wall
ALUMINUM/VINYL
Total Living Area
2613
Full Baths
2
Half Baths
0
Fuel Type
GAS
Heating
CENTRAL
Heating System
FORCED AIR
Stories
2.5
Total Bedrooms
4
Total Family Rooms
0
Total Rooms
9
Fireplaces
0
Other Buildings & Yards
Description
Built
Width
Length
Area
FRAME OR CB DETACHED GARAGE
1930
18
19
342
Sales History
Sale Date
Type
Price
Book / Page
Other Info
3/17/2011
LAND & BUILDING
0
2011 / 006212
DEED
6/16/2010
LAND & BUILDING
25100
2010 / 014050
DEED
7/30/2009
LAND & BUILDING
0
1580 / 0988
QUIT CLAIM DEED
9/8/2003
LAND & BUILDING
27000
1061 / 2031
WARRANTY/SURVIVORSHIP DEED
2/19/1992
0
0195 / 1631
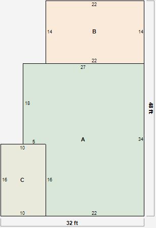
Parcel Sketches
Residential Card 1
A
MAIN
838 square feet
B
1S FR ONE STORY FRAME
308 square feet
C
OFP OPEN FRAME PORCH
160 square feet
Parcel Images
Please note:
this tab is for informational purposes only and may not show all delinquencies, see the Taxes tab for more accurate delinquent taxes due.