Elected Officials
Courts
Departments
Initiatives
Open Government
About
Login / Register
Home
/
Property & Tax Records
/
Property Records
/
Property & Tax Search
/
Parcel Profile
/
Print View
Search for Another Parcel
Parcel Profile
Historical Card
Sketches
Photos
Tax Map
Taxes
Print View
Print This Page
Address: 2408 PENNSYLVANIA AVE
Parcel: 18050042020400
Parcel Profile
Address
2408 | PENNSYLVANIA | AVE
Street Status
PAVED | SIDEWALK
School District
CITY OF ERIE SCHOOL
Acreage
0.0682
Classification
R
Land Use Code
SINGLE FAMILY
Legal Description
2408 PENNSYLVANIA AVE 33 X 90
Square Feet
1256
Topo
LEVEL
Utility
ALL PUBLIC
Zoning
Please contact your municipal zoning officer
Deed Book
2022
Deed Page
026616
2026 Tax Values
Land Value / Taxable
5,100 / 5,100.00
Building Value / Taxable
31,900 / 31,900.00
Total Value / Taxable
37,000 / 37,000.00
Clean & Green
Inactive
Homestead Status
Inactive
Farmstead Status
Inactive
Lerta Amount
0
Lerta Expiration Year
0
Residential Data
Card 1
Style
OLD STYLE
Basement
FULL
Year Built
1907
Exterior Wall
ALUMINUM/VINYL
Total Living Area
1256
Full Baths
1
Half Baths
0
Fuel Type
GAS
Heating
CENTRAL
Heating System
FORCED AIR
Stories
2.0
Total Bedrooms
3
Total Family Rooms
0
Total Rooms
6
Fireplaces
0
Other Buildings & Yards
No OBY Data Found
Sales History
Sale Date
Type
Price
Book / Page
Other Info
12/22/2022
LAND & BUILDING
60000
2022 / 026616
SPECIAL WARRANTY DEED
7/22/2014
LAND & BUILDING
4000
2014 / 014976
DEED
12/15/2010
LAND & BUILDING
0
2010 / 031601
QUIT CLAIM DEED
6/3/1991
0
0163 / 0321
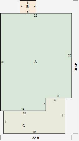
Parcel Sketches
Residential Card 1
A
MAIN
628 square feet
B
EFP ENCL FRAME PORCH
20 square feet
C
EFP ENCL FRAME PORCH
157 square feet
Parcel Images
Please note:
this tab is for informational purposes only and may not show all delinquencies, see the Taxes tab for more accurate delinquent taxes due.