Elected Officials
Courts
Departments
Initiatives
Open Government
About
Login / Register
Home
/
Property & Tax Records
/
Property Records
/
Property & Tax Search
/
Parcel Profile
/
Print View
Search for Another Parcel
Parcel Profile
Historical Card
Sketches
Photos
Tax Map
Taxes
Print View
Print This Page
Address: 1017 E 24 ST
Parcel: 18050042021500
Parcel Profile
Address
1017 | E | 24 | ST
Street Status
PAVED | SIDEWALK
School District
CITY OF ERIE SCHOOL
Acreage
0.0992
Classification
R
Land Use Code
SINGLE FAMILY
Legal Description
1017 E 24 ST 32 X 135
Square Feet
1256
Topo
LEVEL
Utility
ALL PUBLIC
Zoning
Please contact your municipal zoning officer
Deed Book
0506
Deed Page
0133
2026 Tax Values
Land Value / Taxable
5,600 / 5,600.00
Building Value / Taxable
31,700 / 31,700.00
Total Value / Taxable
37,300 / 37,300.00
Clean & Green
Inactive
Homestead Status
Active
Farmstead Status
Inactive
Lerta Amount
0
Lerta Expiration Year
0
Residential Data
Card 1
Style
OLD STYLE
Basement
FULL
Year Built
1908
Exterior Wall
ALUMINUM/VINYL
Total Living Area
1256
Full Baths
1
Half Baths
1
Fuel Type
GAS
Heating
CENTRAL
Heating System
FORCED AIR
Stories
2.0
Total Bedrooms
3
Total Family Rooms
0
Total Rooms
7
Fireplaces
0
Other Buildings & Yards
No OBY Data Found
Sales History
Sale Date
Type
Price
Book / Page
Other Info
6/27/1997
0
0506 / 0133
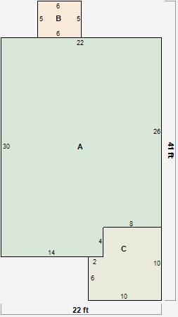
Parcel Sketches
Residential Card 1
A
MAIN
628 square feet
B
EFP ENCL FRAME PORCH
30 square feet
C
EFP ENCL FRAME PORCH
92 square feet
Parcel Images
Please note:
this tab is for informational purposes only and may not show all delinquencies, see the Taxes tab for more accurate delinquent taxes due.