Elected Officials
Courts
Departments
Initiatives
Open Government
About
Login / Register
Home
/
Property & Tax Records
/
Property Records
/
Property & Tax Search
/
Parcel Profile
/
Print View
Search for Another Parcel
Parcel Profile
Historical Card
Sketches
Photos
Tax Map
Taxes
Print View
Print This Page
Address: 1012 E 25 ST
Parcel: 18050042022500
Parcel Profile
Address
1012 | E | 25 | ST
Street Status
PAVED | SIDEWALK
School District
CITY OF ERIE SCHOOL
Acreage
0.0758
Classification
R
Land Use Code
SINGLE FAMILY
Legal Description
1012 E 25 ST 50 X 66
Square Feet
1456
Topo
LEVEL
Utility
ALL PUBLIC
Zoning
Please contact your municipal zoning officer
Deed Book
0112
Deed Page
0425
2026 Tax Values
Land Value / Taxable
5,200 / 5,200.00
Building Value / Taxable
34,100 / 34,100.00
Total Value / Taxable
39,300 / 39,300.00
Clean & Green
Inactive
Homestead Status
Active
Farmstead Status
Inactive
Lerta Amount
0
Lerta Expiration Year
0
Residential Data
Card 1
Style
OLD STYLE
Basement
FULL
Year Built
1918
Exterior Wall
ALUMINUM/VINYL
Total Living Area
1456
Full Baths
1
Half Baths
0
Fuel Type
GAS
Heating
CENTRAL
Heating System
FORCED AIR
Stories
2.0
Total Bedrooms
3
Total Family Rooms
0
Total Rooms
6
Fireplaces
0
Other Buildings & Yards
No OBY Data Found
Sales History
Sale Date
Type
Price
Book / Page
Other Info
2/5/1990
0
0112 / 0425
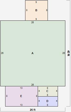
Parcel Sketches
Residential Card 1
A
MAIN
676 square feet
B
EFP ENCL FRAME PORCH
72 square feet
C
EFP ENCL FRAME PORCH
32 square feet
D
OFP OPEN FRAME PORCH
32 square feet
E
1S FR ONE STORY FRAME
104 square feet
Parcel Images
Please note:
this tab is for informational purposes only and may not show all delinquencies, see the Taxes tab for more accurate delinquent taxes due.