Elected Officials
Courts
Departments
Initiatives
Open Government
About
Login / Register
Home
/
Property & Tax Records
/
Property Records
/
Property & Tax Search
/
Parcel Profile
/
Print View
Search for Another Parcel
Parcel Profile
Historical Card
Sketches
Photos
Tax Map
Taxes
Print View
Print This Page
Address: 1026 E 25 ST
Parcel: 18050042022800
Parcel Profile
Address
1026 | E | 25 | ST
Street Status
PAVED | SIDEWALK
School District
CITY OF ERIE SCHOOL
Acreage
0.1240
Classification
R
Land Use Code
SINGLE FAMILY
Legal Description
1026 E 25 ST 40 X 135
Square Feet
1052
Topo
LEVEL
Utility
ALL PUBLIC
Zoning
Please contact your municipal zoning officer
Deed Book
1345
Deed Page
0577
2026 Tax Values
Land Value / Taxable
5,800 / 5,800.00
Building Value / Taxable
26,600 / 26,600.00
Total Value / Taxable
32,400 / 32,400.00
Clean & Green
Inactive
Homestead Status
Active
Farmstead Status
Inactive
Lerta Amount
0
Lerta Expiration Year
0
Residential Data
Card 1
Style
BUNGALOW
Basement
PART
Year Built
1882
Exterior Wall
ALUMINUM/VINYL
Total Living Area
1052
Full Baths
1
Half Baths
0
Fuel Type
GAS
Heating
CENTRAL
Heating System
FORCED AIR
Stories
1.0
Total Bedrooms
3
Total Family Rooms
0
Total Rooms
6
Fireplaces
0
Other Buildings & Yards
No OBY Data Found
Sales History
Sale Date
Type
Price
Book / Page
Other Info
7/17/2006
LAND & BUILDING
55100
1345 / 0577
SPECIAL WARRANTY DEED
8/1/2002
LAND & BUILDING
39900
906 / 1625
4/9/2001
LAND & BUILDING
23000
764 / 1083
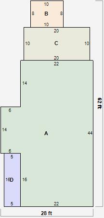
Parcel Sketches
Residential Card 1
A
MAIN
1052 square feet
B
WDDCK WOOD DECKS
80 square feet
C
EFP ENCL FRAME PORCH
200 square feet
D
EFP ENCL FRAME PORCH
80 square feet
Parcel Images
Please note:
this tab is for informational purposes only and may not show all delinquencies, see the Taxes tab for more accurate delinquent taxes due.