Elected Officials
Courts
Departments
Initiatives
Open Government
About
Login / Register
Home
/
Property & Tax Records
/
Property Records
/
Property & Tax Search
/
Parcel Profile
/
Print View
Search for Another Parcel
Parcel Profile
Historical Card
Sketches
Photos
Tax Map
Taxes
Print View
Print This Page
Address: 1146 E 26 ST
Parcel: 18050043013300
Parcel Profile
Address
1146 | E | 26 | ST
Street Status
PAVED | SIDEWALK
School District
CITY OF ERIE SCHOOL
Acreage
0.1331
Classification
R
Land Use Code
TWO FAMILY
Legal Description
1146 E 26 ST 40 X 145
Square Feet
1874
Topo
LEVEL
Utility
ALL PUBLIC
Zoning
Please contact your municipal zoning officer
Deed Book
2024
Deed Page
004165
2026 Tax Values
Land Value / Taxable
5,800 / 5,800.00
Building Value / Taxable
48,000 / 48,000.00
Total Value / Taxable
53,800 / 53,800.00
Clean & Green
Inactive
Homestead Status
Inactive
Farmstead Status
Inactive
Lerta Amount
0
Lerta Expiration Year
0
Residential Data
Card 1
Style
OLD STYLE
Basement
FULL
Year Built
1904
Exterior Wall
ALUMINUM/VINYL
Total Living Area
1874
Full Baths
2
Half Baths
0
Fuel Type
GAS
Heating
CENTRAL
Heating System
FORCED AIR
Stories
2.0
Total Bedrooms
4
Total Family Rooms
0
Total Rooms
10
Fireplaces
0
Other Buildings & Yards
Description
Built
Width
Length
Area
BRICK OR STONE DETACHED GAR.
1951
36
21
756
Sales History
Sale Date
Type
Price
Book / Page
Other Info
3/20/2024
LAND & BUILDING
37146
2024 / 004165
SPECIAL WARRANTY DEED
4/21/2023
LAND & BUILDING
3952
2023 / 006038
SHERIFF'S DED
8/13/1999
LAND & BUILDING
33500
0655 / 1849
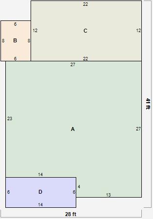
Parcel Sketches
Residential Card 1
A
MAIN
673 square feet
B
EFP ENCL FRAME PORCH
48 square feet
C
1S FR ONE STORY FRAME 1S FR ONE STORY FRAME
264 square feet
D
OFP OPEN FRAME PORCH OFP OPEN FRAME PORCH
84 square feet
Parcel Images
Please note:
this tab is for informational purposes only and may not show all delinquencies, see the Taxes tab for more accurate delinquent taxes due.