Elected Officials
Courts
Departments
Initiatives
Open Government
About
Login / Register
Home
/
Property & Tax Records
/
Property Records
/
Property & Tax Search
/
Parcel Profile
/
Print View
Search for Another Parcel
Parcel Profile
Historical Card
Sketches
Photos
Tax Map
Taxes
Print View
Print This Page
Address: 1154 E 26 ST
Parcel: 18050043013500
Parcel Profile
Address
1154 | E | 26 | ST
Street Status
PAVED | SIDEWALK
School District
CITY OF ERIE SCHOOL
Acreage
0.0670
Classification
R
Land Use Code
DWELLING W/ COMMERCIAL USE PRIMARY RES
Legal Description
1154 E 26 ST 40 X 73
Square Feet
1268
Topo
LEVEL
Utility
ALL PUBLIC
Zoning
Please contact your municipal zoning officer
Deed Book
2013
Deed Page
025631
2026 Tax Values
Land Value / Taxable
5,000 / 5,000.00
Building Value / Taxable
18,840 / 18,840.00
Total Value / Taxable
23,840 / 23,840.00
Clean & Green
Inactive
Homestead Status
Active
Farmstead Status
Inactive
Lerta Amount
0
Lerta Expiration Year
0
Residential Data
Card 1
Style
BUNGALOW
Basement
FULL
Year Built
1892
Exterior Wall
ALUMINUM/VINYL
Total Living Area
1268
Full Baths
1
Half Baths
0
Fuel Type
GAS
Heating
CENTRAL A/C
Heating System
FORCED AIR
Stories
1.0
Total Bedrooms
3
Total Family Rooms
0
Total Rooms
6
Fireplaces
0
Other Buildings & Yards
No OBY Data Found
Sales History
Sale Date
Type
Price
Book / Page
Other Info
9/25/2013
LAND & BUILDING
35000
2013 / 025631
SPECIAL WARRANTY DEED
11/6/2009
LAND & BUILDING
17000
1601 / 2126
SPECIAL WARRANTY DEED
7/15/2008
LAND & BUILDING
0
1509 / 0001
SHERIFF'S DED
9/11/1995
0
0402 / 1412
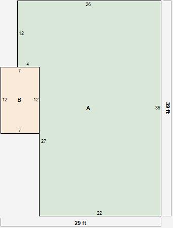
Parcel Sketches
Residential Card 1
A
MAIN
906 square feet
B
EFP ENCL FRAME PORCH
84 square feet
Parcel Images
Please note:
this tab is for informational purposes only and may not show all delinquencies, see the Taxes tab for more accurate delinquent taxes due.