Elected Officials
Courts
Departments
Initiatives
Open Government
About
Login / Register
Home
/
Property & Tax Records
/
Property Records
/
Property & Tax Search
/
Parcel Profile
/
Print View
Search for Another Parcel
Parcel Profile
Historical Card
Sketches
Photos
Tax Map
Taxes
Print View
Print This Page
Address: 1205 E 32 ST
Parcel: 18050046011100
Parcel Profile
Address
1205 | E | 32 | ST
Street Status
SIDEWALK
School District
CITY OF ERIE SCHOOL
Acreage
0.1800
Classification
R
Land Use Code
SINGLE FAMILY
Legal Description
1205 E 32 ST 78.4 X 100
Square Feet
1820
Topo
LEVEL
Utility
ALL PUBLIC
Zoning
Please contact your municipal zoning officer
Deed Book
0301
Deed Page
1011
2026 Tax Values
Land Value / Taxable
18,400 / 18,400.00
Building Value / Taxable
47,840 / 47,840.00
Total Value / Taxable
66,240 / 66,240.00
Clean & Green
Inactive
Homestead Status
Active
Farmstead Status
Inactive
Lerta Amount
0
Lerta Expiration Year
0
Residential Data
Card 1
Style
CAPE
Basement
FULL
Year Built
1930
Exterior Wall
ALUMINUM/VINYL
Total Living Area
1820
Full Baths
1
Half Baths
0
Fuel Type
GAS
Heating
CENTRAL
Heating System
FORCED AIR
Stories
1.5
Total Bedrooms
3
Total Family Rooms
0
Total Rooms
7
Fireplaces
0
Other Buildings & Yards
No OBY Data Found
Sales History
Sale Date
Type
Price
Book / Page
Other Info
11/3/1993
0
0301 / 1011
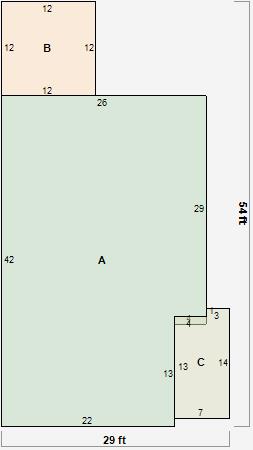
Parcel Sketches
Residential Card 1
A
MAIN
1040 square feet
B
MA_PT CONC/MAS PATIO
144 square feet
C
OFP OPEN FRAME PORCH
94 square feet
Parcel Images
Please note:
this tab is for informational purposes only and may not show all delinquencies, see the Taxes tab for more accurate delinquent taxes due.