Elected Officials
Courts
Departments
Initiatives
Open Government
About
Login / Register
Home
/
Property & Tax Records
/
Property Records
/
Property & Tax Search
/
Parcel Profile
/
Print View
Search for Another Parcel
Parcel Profile
Historical Card
Sketches
Photos
Tax Map
Taxes
Print View
Print This Page
Address: 1163 E 31 ST
Parcel: 18050047020100
Parcel Profile
Address
1163 | E | 31 | ST
Street Status
PAVED
School District
CITY OF ERIE SCHOOL
Acreage
0.1240
Classification
R
Land Use Code
SINGLE FAMILY
Legal Description
1163 E 31 ST 40 X 135
Square Feet
1032
Topo
LEVEL
Utility
ALL PUBLIC
Zoning
Please contact your municipal zoning officer
Deed Book
2014
Deed Page
021569
2026 Tax Values
Land Value / Taxable
14,000 / 14,000.00
Building Value / Taxable
31,100 / 31,100.00
Total Value / Taxable
45,100 / 45,100.00
Clean & Green
Inactive
Homestead Status
Active
Farmstead Status
Inactive
Lerta Amount
0
Lerta Expiration Year
0
Residential Data
Card 1
Style
BUNGALOW
Basement
FULL
Year Built
1932
Exterior Wall
FRAME
Total Living Area
1032
Full Baths
1
Half Baths
0
Fuel Type
GAS
Heating
CENTRAL
Heating System
FORCED AIR
Stories
1.0
Total Bedrooms
2
Total Family Rooms
0
Total Rooms
5
Fireplaces
0
Other Buildings & Yards
Description
Built
Width
Length
Area
FRAME OR CB DETACHED GARAGE
1932
18
18
324
Sales History
Sale Date
Type
Price
Book / Page
Other Info
10/9/2014
LAND & BUILDING
80900
2014 / 021569
SPECIAL WARRANTY DEED
2/19/2014
LAND & BUILDING
30000
2014 / 003120
DEED
9/24/2010
LAND & BUILDING
0
2010 / 023700
DEED
3/3/2005
LAND & BUILDING
0
1214 / 2077
QUIT CLAIM DEED
3/28/1977
0
1256 / 0402
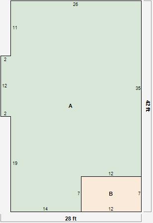
Parcel Sketches
Residential Card 1
A
MAIN
1032 square feet
B
OFP OPEN FRAME PORCH
84 square feet
Parcel Images
Please note:
this tab is for informational purposes only and may not show all delinquencies, see the Taxes tab for more accurate delinquent taxes due.