Elected Officials
Courts
Departments
Initiatives
Open Government
About
Login / Register
Home
/
Property & Tax Records
/
Property Records
/
Property & Tax Search
/
Parcel Profile
/
Print View
Search for Another Parcel
Parcel Profile
Historical Card
Sketches
Photos
Tax Map
Taxes
Print View
Print This Page
Address: 1158 E 29 ST
Parcel: 18050048020000
Parcel Profile
Address
1158 | E | 29 | ST
Street Status
PAVED | SIDEWALK
School District
CITY OF ERIE SCHOOL
Acreage
0.0624
Classification
R
Land Use Code
SINGLE FAMILY
Legal Description
1158 E 29 ST 30.25 X 89.84
Square Feet
1536
Topo
LEVEL
Utility
ALL PUBLIC
Zoning
Please contact your municipal zoning officer
Deed Book
2020
Deed Page
009032
2025 Tax Values
Land Value / Taxable
16,400 / 16,400.00
Building Value / Taxable
49,400 / 49,400.00
Total Value / Taxable
65,800 / 65,800.00
Clean & Green
Inactive
Homestead Status
Active
Farmstead Status
Inactive
Lerta Amount
0
Lerta Expiration Year
0
Residential Data
Card 1
Style
OLD STYLE
Basement
FULL
Year Built
1928
Exterior Wall
BRICK
Total Living Area
1536
Full Baths
1
Half Baths
0
Fuel Type
GAS
Heating
CENTRAL
Heating System
FORCED AIR
Stories
2.0
Total Bedrooms
3
Total Family Rooms
1
Total Rooms
6
Fireplaces
0
Other Buildings & Yards
Description
Built
Width
Length
Area
FRAME OR CB DETACHED GARAGE
1928
12
18
216
Sales History
Sale Date
Type
Price
Book / Page
Other Info
5/22/2020
LAND & BUILDING
89900
2020 / 009032
SPECIAL WARRANTY DEED
12/4/2003
LAND & BUILDING
82500
1092 / 0055
WARRANTY/SURVIVORSHIP DEED
10/27/2003
LAND & BUILDING
0
1080 / 0758
FIDUCIARY DEED
4/13/1956
0
0726 / 0311
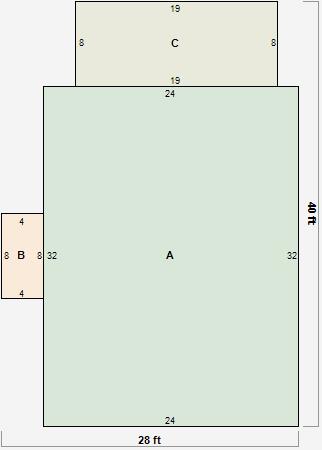
Parcel Sketches
Residential Card 1
A
MAIN
768 square feet
B
OFP OPEN FRAME PORCH
32 square feet
C
OFP OPEN FRAME PORCH
152 square feet
Parcel Images