Address: 2819 PENNSYLVANIA AVE   Parcel: 18050048022300
Parcel Profile
Address2819 | PENNSYLVANIA | AVE
Street StatusPAVED | SIDEWALK
School DistrictCITY OF ERIE SCHOOL
Acreage0.0870
ClassificationR
Land Use CodeSINGLE FAMILY
Legal Description2819 PENNSYLVANIA AVE 38.5 X 74.38
Square Feet1229
TopoLEVEL
UtilityALL PUBLIC
ZoningPlease contact your municipal zoning officer
Deed Book2010
Deed Page025270
2026 Tax Values
Land Value / Taxable16,800 / 16,800.00
Building Value / Taxable38,900 / 38,900.00
Total Value / Taxable55,700 / 55,700.00
Clean & GreenInactive
Homestead StatusActive
Farmstead StatusInactive
Lerta Amount0
Lerta Expiration Year0
Residential Data
Card 1
     StyleOLD STYLE
     BasementFULL
     Year Built1924
     Exterior WallALUMINUM/VINYL
     Total Living Area1229
     Full Baths1
     Half Baths0
     Fuel TypeGAS
     HeatingCENTRAL
     Heating SystemFORCED AIR
     Stories1.5
     Total Bedrooms3
     Total Family Rooms0
     Total Rooms6
     Fireplaces0
Other Buildings & Yards
DescriptionBuiltWidthLengthArea
 FRAME OR CB DETACHED GARAGE 1948 10 18 180
Sales History
Sale DateTypePriceBook / PageOther Info
10/11/2010LAND & BUILDING455002010 / 025270FIDUCIARY DEED
1/1/1961 0851 / 273 



Parcel Sketches

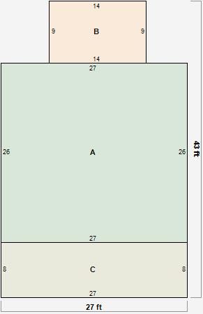
Residential Card 1

Residential Card 1
AMAIN702 square feet
B OFP OPEN FRAME PORCH 126 square feet
CUNFIN BSMT BASEMENT UNFINISHED OFP OPEN FRAME PORCH 216 square feet

Parcel Images

parcel photo