Elected Officials
Courts
Departments
Initiatives
Open Government
About
Login / Register
Home
/
Property & Tax Records
/
Property Records
/
Property & Tax Search
/
Parcel Profile
/
Print View
Search for Another Parcel
Parcel Profile
Historical Card
Sketches
Photos
Tax Map
Taxes
Print View
Print This Page
Address: 1027 E 26 ST
Parcel: 18050049021000
Parcel Profile
Address
1027 | E | 26 | ST
Street Status
PAVED | SIDEWALK
School District
CITY OF ERIE SCHOOL
Acreage
0.5510
Classification
E
Land Use Code
EXEMPT CHURCHES
Legal Description
1027 E 26 ST
Square Feet
11222
Topo
LEVEL
Utility
ALL PUBLIC
Zoning
Please contact your municipal zoning officer
Deed Book
0194
Deed Page
1442
2026 Tax Values
Land Value / Taxable
54,000 / 54,000.00
Building Value / Taxable
282,800 / 282,800.00
Total Value / Taxable
336,800 / 336,800.00
Clean & Green
Inactive
Homestead Status
Inactive
Farmstead Status
Inactive
Lerta Amount
0
Lerta Expiration Year
0
Commercial Data
Card 1
MIXED RESIDENTIAL/COMMERCIAL
Business Living Area - 5574
Year Built - 1960
Improvement Name - THE REFUGE HOME AND SHELTER
Value - 93380
Card 2
MIXED RESIDENTIAL/COMMERCIAL
Business Living Area - 5648
Year Built - 2001
Improvement Name -
Value - 175770
Other Buildings & Yards
Description
Built
Width
Length
Area
FRAME OR CB DETACHED GARAGE
1900
25
32
800
Sales History
Sale Date
Type
Price
Book / Page
Other Info
2/11/1992
0
0194 / 1442
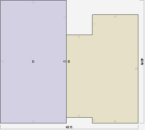
Parcel Sketches
Commercial Card 1
A
MAIN
1858 square feet
B
MAIN
1858 square feet
C
MAIN
1858 square feet
D
MAIN
495 square feet
Commercial Card 2
A
MAIN
2178 square feet
B
MAIN
2222 square feet
C
MAIN
1248 square feet
Parcel Images
Please note:
this tab is for informational purposes only and may not show all delinquencies, see the Taxes tab for more accurate delinquent taxes due.