Elected Officials
Courts
Departments
Initiatives
Open Government
About
Login / Register
Home
/
Property & Tax Records
/
Property Records
/
Property & Tax Search
/
Parcel Profile
/
Print View
Search for Another Parcel
Parcel Profile
Historical Card
Sketches
Photos
Tax Map
Taxes
Print View
Print This Page
Address: 909 E 31 ST
Parcel: 18050054012300
Parcel Profile
Address
909 | E | 31 | ST
Street Status
PAVED | SIDEWALK
School District
CITY OF ERIE SCHOOL
Acreage
0.1791
Classification
R
Land Use Code
SINGLE FAMILY
Legal Description
909 E 31 ST 60 X 130
Square Feet
1911
Topo
LEVEL
Utility
ALL PUBLIC
Zoning
Please contact your municipal zoning officer
Deed Book
0273
Deed Page
1888
2026 Tax Values
Land Value / Taxable
18,400 / 18,400.00
Building Value / Taxable
73,820 / 73,820.00
Total Value / Taxable
92,220 / 92,220.00
Clean & Green
Inactive
Homestead Status
Active
Farmstead Status
Inactive
Lerta Amount
0
Lerta Expiration Year
0
Residential Data
Card 1
Style
BUNGALOW
Basement
FULL
Year Built
1928
Exterior Wall
BRICK
Total Living Area
1911
Full Baths
1
Half Baths
0
Fuel Type
GAS
Heating
CENTRAL A/C
Heating System
FORCED AIR
Stories
1.0
Total Bedrooms
4
Total Family Rooms
0
Total Rooms
7
Fireplaces
0
Other Buildings & Yards
Description
Built
Width
Length
Area
FRAME OR CB DETACHED GARAGE
1984
24
26
624
Sales History
Sale Date
Type
Price
Book / Page
Other Info
6/10/1993
0
0273 / 1888
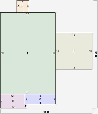
Parcel Sketches
Residential Card 1
A
MAIN
1080 square feet
B
EMP ENCL MASONRY PORCH
36 square feet
C
1S FR ONE STORY FRAME
324 square feet
D
1SMAS MASONRY
75 square feet
E
EMP ENCL MASONRY PORCH
86 square feet
Parcel Images
Please note:
this tab is for informational purposes only and may not show all delinquencies, see the Taxes tab for more accurate delinquent taxes due.