Elected Officials
Courts
Departments
Initiatives
Open Government
About
Login / Register
Home
/
Property & Tax Records
/
Property Records
/
Property & Tax Search
/
Parcel Profile
/
Print View
Search for Another Parcel
Parcel Profile
Historical Card
Sketches
Photos
Tax Map
Taxes
Print View
Print This Page
Address: 3216 EAST AVE
Parcel: 18050055010300
Parcel Profile
Address
3216 | EAST | AVE
Street Status
PAVED | SIDEWALK
School District
CITY OF ERIE SCHOOL
Acreage
0.0906
Classification
R
Land Use Code
SINGLE FAMILY
Legal Description
3216 EAST AVE 33.75 X IRR
Square Feet
1008
Topo
LEVEL
Utility
ALL PUBLIC
Zoning
Please contact your municipal zoning officer
Deed Book
2014
Deed Page
011071
2026 Tax Values
Land Value / Taxable
16,900 / 16,900.00
Building Value / Taxable
25,100 / 25,100.00
Total Value / Taxable
42,000 / 42,000.00
Clean & Green
Inactive
Homestead Status
Inactive
Farmstead Status
Inactive
Lerta Amount
0
Lerta Expiration Year
0
Residential Data
Card 1
Style
CAPE
Basement
FULL
Year Built
1923
Exterior Wall
ALUMINUM/VINYL
Total Living Area
1008
Full Baths
1
Half Baths
0
Fuel Type
GAS
Heating
CENTRAL
Heating System
FORCED AIR
Stories
1.5
Total Bedrooms
2
Total Family Rooms
0
Total Rooms
4
Fireplaces
0
Other Buildings & Yards
No OBY Data Found
Sales History
Sale Date
Type
Price
Book / Page
Other Info
6/5/2014
LAND & BUILDING
39000
2014 / 011071
SPECIAL WARRANTY DEED
6/30/1997
0
0506 / 0862
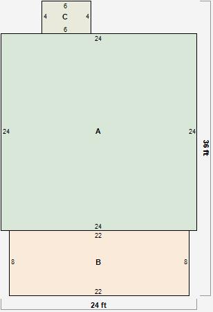
Parcel Sketches
Residential Card 1
A
MAIN
576 square feet
B
OFP OPEN FRAME PORCH
176 square feet
C
EFP ENCL FRAME PORCH
24 square feet
Parcel Images
Please note:
this tab is for informational purposes only and may not show all delinquencies, see the Taxes tab for more accurate delinquent taxes due.