Elected Officials
Courts
Departments
Initiatives
Open Government
About
Login / Register
Home
/
Property & Tax Records
/
Property Records
/
Property & Tax Search
/
Parcel Profile
/
Print View
Search for Another Parcel
Parcel Profile
Historical Card
Sketches
Photos
Tax Map
Taxes
Print View
Print This Page
Address: 955 E 32 ST
Parcel: 18050055011000
Parcel Profile
Address
955 | E | 32 | ST
Street Status
PAVED | SIDEWALK
School District
CITY OF ERIE SCHOOL
Acreage
0.1550
Classification
R
Land Use Code
SINGLE FAMILY
Legal Description
955 E 32 ST 50 X 135
Square Feet
1008
Topo
LEVEL
Utility
ALL PUBLIC
Zoning
Please contact your municipal zoning officer
Deed Book
2020
Deed Page
011157
2026 Tax Values
Land Value / Taxable
18,000 / 18,000.00
Building Value / Taxable
35,500 / 35,500.00
Total Value / Taxable
53,500 / 53,500.00
Clean & Green
Inactive
Homestead Status
Active
Farmstead Status
Inactive
Lerta Amount
0
Lerta Expiration Year
0
Residential Data
Card 1
Style
CAPE
Basement
FULL
Year Built
1950
Exterior Wall
ALUMINUM/VINYL
Total Living Area
1008
Full Baths
1
Half Baths
1
Fuel Type
GAS
Heating
CENTRAL
Heating System
FORCED AIR
Stories
1.0
Total Bedrooms
3
Total Family Rooms
0
Total Rooms
6
Fireplaces
0
Other Buildings & Yards
Description
Built
Width
Length
Area
FRAME UTILITY SHED
1970
8
10
80
Sales History
Sale Date
Type
Price
Book / Page
Other Info
6/23/2020
LAND & BUILDING
66000
2020 / 011157
SPECIAL WARRANTY DEED
11/21/1968
0
0993 / 0234
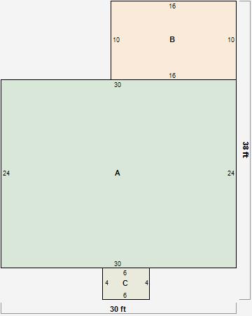
Parcel Sketches
Residential Card 1
A
MAIN
720 square feet
B
WDDCK WOOD DECKS
160 square feet
C
MA STOOP/TERR MAS STOOP
24 square feet
Parcel Images
Please note:
this tab is for informational purposes only and may not show all delinquencies, see the Taxes tab for more accurate delinquent taxes due.