Elected Officials
Courts
Departments
Initiatives
Open Government
About
Login / Register
Home
/
Property & Tax Records
/
Property Records
/
Property & Tax Search
/
Parcel Profile
/
Print View
Search for Another Parcel
Parcel Profile
Historical Card
Sketches
Photos
Tax Map
Taxes
Print View
Print This Page
Address: 839 E 29 ST
Parcel: 18050057011000
Parcel Profile
Address
839 | E | 29 | ST
Street Status
PAVED | SIDEWALK
School District
CITY OF ERIE SCHOOL
Acreage
0.1054
Classification
R
Land Use Code
SINGLE FAMILY
Legal Description
839 E 29 ST 34 X 135
Square Feet
1144
Topo
LEVEL
Utility
ALL PUBLIC
Zoning
Please contact your municipal zoning officer
Deed Book
1109
Deed Page
1297
2026 Tax Values
Land Value / Taxable
17,200 / 17,200.00
Building Value / Taxable
47,770 / 47,770.00
Total Value / Taxable
64,970 / 64,970.00
Clean & Green
Inactive
Homestead Status
Active
Farmstead Status
Inactive
Lerta Amount
0.00
Lerta Expiration Year
2019
Residential Data
Card 1
Style
OLD STYLE
Basement
FULL
Year Built
1922
Exterior Wall
ALUMINUM/VINYL
Total Living Area
1144
Full Baths
1
Half Baths
0
Fuel Type
GAS
Heating
CENTRAL
Heating System
FORCED AIR
Stories
2.0
Total Bedrooms
3
Total Family Rooms
0
Total Rooms
7
Fireplaces
0
Other Buildings & Yards
No OBY Data Found
Sales History
Sale Date
Type
Price
Book / Page
Other Info
2/23/2004
LAND & BUILDING
0
1109 / 1297
WARRANTY/SURVIVORSHIP DEED
5/1/2002
LAND & BUILDING
61900
876 / 944
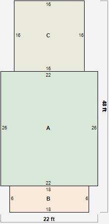
Parcel Sketches
Residential Card 1
A
MAIN
572 square feet
B
EFP ENCL FRAME PORCH
108 square feet
C
WDDCK WOOD DECKS
256 square feet
Parcel Images
Please note:
this tab is for informational purposes only and may not show all delinquencies, see the Taxes tab for more accurate delinquent taxes due.