Elected Officials
Courts
Departments
Initiatives
Open Government
About
Login / Register
Home
/
Property & Tax Records
/
Property Records
/
Property & Tax Search
/
Parcel Profile
/
Print View
Search for Another Parcel
Parcel Profile
Historical Card
Sketches
Photos
Tax Map
Taxes
Print View
Print This Page
Address: 858 E 31 ST
Parcel: 18050058020000
Parcel Profile
Address
858 | E | 31 | ST
Street Status
PAVED | SIDEWALK
School District
CITY OF ERIE SCHOOL
Acreage
0.1194
Classification
R
Land Use Code
SINGLE FAMILY
Legal Description
858 E 31 ST 40 X 130
Square Feet
1640
Topo
LEVEL
Utility
ALL PUBLIC
Zoning
Please contact your municipal zoning officer
Deed Book
2017
Deed Page
008945
2026 Tax Values
Land Value / Taxable
17,500 / 17,500.00
Building Value / Taxable
49,500 / 49,500.00
Total Value / Taxable
67,000 / 67,000.00
Clean & Green
Inactive
Homestead Status
Active
Farmstead Status
Inactive
Lerta Amount
0
Lerta Expiration Year
0
Residential Data
Card 1
Style
OLD STYLE
Basement
FULL
Year Built
1927
Exterior Wall
ALUMINUM/VINYL
Total Living Area
1640
Full Baths
1
Half Baths
0
Fuel Type
GAS
Heating
CENTRAL A/C
Heating System
FORCED AIR
Stories
2.0
Total Bedrooms
3
Total Family Rooms
0
Total Rooms
7
Fireplaces
1
Other Buildings & Yards
No OBY Data Found
Sales History
Sale Date
Type
Price
Book / Page
Other Info
5/2/2017
LAND & BUILDING
48000
2017 / 008945
SPECIAL WARRANTY DEED
11/4/1977
0
1286 / 0413
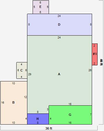
Parcel Sketches
Residential Card 1
A
MAIN
648 square feet
B
CARPT CARPORT
160 square feet
C
FRBAY FRAME BAY
24 square feet
D
1S FR ONE STORY FRAME
192 square feet
E
MA STOOP/TERR MAS STOOP
30 square feet
F
FRBAY FRAME BAY
16 square feet
G
1S FR ONE STORY FRAME
112 square feet
H
OFP OPEN FRAME PORCH
32 square feet
Parcel Images
Please note:
this tab is for informational purposes only and may not show all delinquencies, see the Taxes tab for more accurate delinquent taxes due.