Elected Officials
Courts
Departments
Initiatives
Open Government
About
Login / Register
Home
/
Property & Tax Records
/
Property Records
/
Property & Tax Search
/
Parcel Profile
/
Print View
Search for Another Parcel
Parcel Profile
Historical Card
Sketches
Photos
Tax Map
Taxes
Print View
Print This Page
Address: 2709 MONROE AVE
Parcel: 18050060012000
Parcel Profile
Address
2709 | MONROE | AVE
Street Status
PAVED | SIDEWALK
School District
CITY OF ERIE SCHOOL
Acreage
0.0806
Classification
R
Land Use Code
SINGLE FAMILY
Legal Description
2709 MONROE AVE 40 X 87.81
Square Feet
1232
Topo
LEVEL
Utility
ALL PUBLIC
Zoning
Please contact your municipal zoning officer
Deed Book
0407
Deed Page
2185
2025 Tax Values
Land Value / Taxable
16,700 / 16,700.00
Building Value / Taxable
46,660 / 46,660.00
Total Value / Taxable
63,360 / 63,360.00
Clean & Green
Inactive
Homestead Status
Active
Farmstead Status
Inactive
Lerta Amount
0
Lerta Expiration Year
0
Residential Data
Card 1
Style
CONVENTIONAL
Basement
FULL
Year Built
1940
Exterior Wall
BRICK
Total Living Area
1232
Full Baths
1
Half Baths
0
Fuel Type
GAS
Heating
CENTRAL
Heating System
FORCED AIR
Stories
2.0
Total Bedrooms
2
Total Family Rooms
0
Total Rooms
6
Fireplaces
0
Other Buildings & Yards
Description
Built
Width
Length
Area
FRAME OR CB DETACHED GARAGE
1940
11
18
198
Sales History
Sale Date
Type
Price
Book / Page
Other Info
10/13/1995
0
0407 / 2185
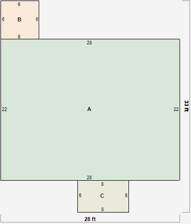
Parcel Sketches
Residential Card 1
A
MAIN
616 square feet
B
EMP ENCL MASONRY PORCH
36 square feet
C
EMP ENCL MASONRY PORCH
40 square feet
Parcel Images