Elected Officials
Courts
Departments
Initiatives
Open Government
About
Login / Register
Home
/
Property & Tax Records
/
Property Records
/
Property & Tax Search
/
Parcel Profile
/
Print View
Search for Another Parcel
Parcel Profile
Historical Card
Sketches
Photos
Tax Map
Taxes
Print View
Print This Page
Address: 728 E 33 ST
Parcel: 18050063013000
Parcel Profile
Address
728 | E | 33 | ST
Street Status
PAVED | SIDEWALK
School District
CITY OF ERIE SCHOOL
Acreage
0.2169
Classification
R
Land Use Code
SINGLE FAMILY
Legal Description
728 E 33 ST 70 X 135
Square Feet
972
Topo
LEVEL
Utility
ALL PUBLIC
Zoning
Please contact your municipal zoning officer
Deed Book
2017
Deed Page
021925
2026 Tax Values
Land Value / Taxable
19,000 / 19,000.00
Building Value / Taxable
54,590 / 54,590.00
Total Value / Taxable
73,590 / 73,590.00
Clean & Green
Inactive
Homestead Status
Active
Farmstead Status
Inactive
Lerta Amount
0
Lerta Expiration Year
0
Residential Data
Card 1
Style
RANCH
Basement
FULL
Year Built
1950
Exterior Wall
BRICK
Total Living Area
972
Full Baths
1
Half Baths
0
Fuel Type
GAS
Heating
CENTRAL
Heating System
FORCED AIR
Stories
1.0
Total Bedrooms
2
Total Family Rooms
0
Total Rooms
4
Fireplaces
0
Other Buildings & Yards
Description
Built
Width
Length
Area
FRAME OR CB DETACHED GARAGE
1953
14
22
308
Sales History
Sale Date
Type
Price
Book / Page
Other Info
10/6/2017
LAND & BUILDING
71500
2017 / 021925
DEED
7/21/2010
LAND & BUILDING
75000
2010 / 017722
DEED
2/18/1992
0
0195 / 1467
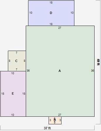
Parcel Sketches
Residential Card 1
A
MAIN
972 square feet
B
MA STOOP/TERR MAS STOOP
15 square feet
C
OFP OPEN FRAME PORCH
56 square feet
D
EFP ENCL FRAME PORCH
180 square feet
E
WDDCK WOOD DECKS
180 square feet
Parcel Images
Please note:
this tab is for informational purposes only and may not show all delinquencies, see the Taxes tab for more accurate delinquent taxes due.