Elected Officials
Courts
Departments
Initiatives
Open Government
About
Login / Register
Home
/
Property & Tax Records
/
Property Records
/
Property & Tax Search
/
Parcel Profile
/
Print View
Search for Another Parcel
Parcel Profile
Historical Card
Sketches
Photos
Tax Map
Taxes
Print View
Print This Page
Address: 629 E 29 ST
Parcel: 18050065011300
Parcel Profile
Address
629 | E | 29 | ST
Street Status
PAVED | SIDEWALK
School District
CITY OF ERIE SCHOOL
Acreage
0.1240
Classification
R
Land Use Code
SINGLE FAMILY
Legal Description
629 E 29 ST 40 X 135
Square Feet
1472
Topo
LEVEL
Utility
ALL PUBLIC
Zoning
Please contact your municipal zoning officer
Deed Book
2024
Deed Page
012881
2026 Tax Values
Land Value / Taxable
17,500 / 17,500.00
Building Value / Taxable
47,900 / 47,900.00
Total Value / Taxable
65,400 / 65,400.00
Clean & Green
Inactive
Homestead Status
Active
Farmstead Status
Inactive
Lerta Amount
0
Lerta Expiration Year
0
Residential Data
Card 1
Style
OLD STYLE
Basement
FULL
Year Built
1910
Exterior Wall
ALUMINUM/VINYL
Total Living Area
1472
Full Baths
1
Half Baths
1
Fuel Type
GAS
Heating
CENTRAL A/C
Heating System
HOT WATER
Stories
2.0
Total Bedrooms
4
Total Family Rooms
0
Total Rooms
8
Fireplaces
0
Other Buildings & Yards
Description
Built
Width
Length
Area
FRAME OR CB DETACHED GARAGE
1910
19
18
342
Sales History
Sale Date
Type
Price
Book / Page
Other Info
8/15/2024
LAND & BUILDING
130000
2024 / 012881
SPECIAL WARRANTY DEED
9/9/2009
LAND & BUILDING
70000
1589 / 0055
DEED
4/20/2005
LAND & BUILDING
61500
1227 / 0139
SPECIAL WARRANTY DEED
6/23/1989
0
0090 / 1040
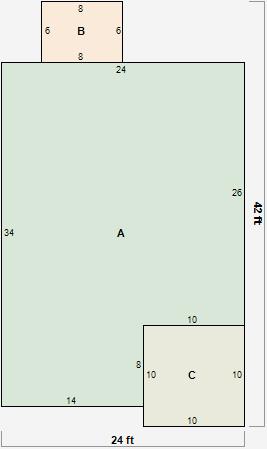
Parcel Sketches
Residential Card 1
A
MAIN
736 square feet
B
EFP ENCL FRAME PORCH
48 square feet
C
OFP OPEN FRAME PORCH
100 square feet
Parcel Images
Please note:
this tab is for informational purposes only and may not show all delinquencies, see the Taxes tab for more accurate delinquent taxes due.