Elected Officials
Courts
Departments
Initiatives
Open Government
About
Login / Register
Home
/
Property & Tax Records
/
Property Records
/
Property & Tax Search
/
Parcel Profile
/
Print View
Search for Another Parcel
Parcel Profile
Historical Card
Sketches
Photos
Tax Map
Taxes
Print View
Print This Page
Address: 614 E 29 ST
Parcel: 18050065022700
Parcel Profile
Address
614 | E | 29 | ST
Street Status
PAVED | SIDEWALK
School District
CITY OF ERIE SCHOOL
Acreage
0.1829
Classification
R
Land Use Code
SINGLE FAMILY
Legal Description
614 E 29 ST 59 X 135
Square Feet
1120
Topo
LEVEL
Utility
ALL PUBLIC
Zoning
Please contact your municipal zoning officer
Deed Book
2017
Deed Page
005126
2026 Tax Values
Land Value / Taxable
18,400 / 18,400.00
Building Value / Taxable
53,970 / 53,970.00
Total Value / Taxable
72,370 / 72,370.00
Clean & Green
Inactive
Homestead Status
Active
Farmstead Status
Inactive
Lerta Amount
0
Lerta Expiration Year
0
Residential Data
Card 1
Style
RANCH
Basement
FULL
Year Built
1963
Exterior Wall
ALUMINUM/VINYL
Total Living Area
1120
Full Baths
1
Half Baths
0
Fuel Type
GAS
Heating
CENTRAL
Heating System
FORCED AIR
Stories
1.0
Total Bedrooms
3
Total Family Rooms
0
Total Rooms
5
Fireplaces
0
Other Buildings & Yards
Description
Built
Width
Length
Area
FRAME OR CB DETACHED GARAGE
1963
14
22
308
Sales History
Sale Date
Type
Price
Book / Page
Other Info
3/14/2017
LAND & BUILDING
72000
2017 / 005126
SPECIAL WARRANTY DEED
10/6/1989
0
0101 / 1108
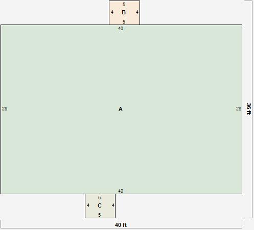
Parcel Sketches
Residential Card 1
A
MAIN
1120 square feet
B
OFP OPEN FRAME PORCH
20 square feet
C
OFP OPEN FRAME PORCH
20 square feet
Parcel Images
Please note:
this tab is for informational purposes only and may not show all delinquencies, see the Taxes tab for more accurate delinquent taxes due.