Elected Officials
Courts
Departments
Initiatives
Open Government
About
Login / Register
Home
/
Property & Tax Records
/
Property Records
/
Property & Tax Search
/
Parcel Profile
/
Print View
Search for Another Parcel
Parcel Profile
Historical Card
Sketches
Photos
Tax Map
Taxes
Print View
Print This Page
Address: 520 E 28 ST
Parcel: 18050068011600
Parcel Profile
Address
520 | E | 28 | ST
Street Status
PAVED | SIDEWALK
School District
CITY OF ERIE SCHOOL
Acreage
0.1023
Classification
R
Land Use Code
SINGLE FAMILY
Legal Description
520 E 28 ST 33 X 135
Square Feet
1060
Topo
LEVEL
Utility
ALL PUBLIC
Zoning
Please contact your municipal zoning officer
Deed Book
2024
Deed Page
003518
2026 Tax Values
Land Value / Taxable
17,200 / 17,200.00
Building Value / Taxable
45,630 / 45,630.00
Total Value / Taxable
62,830 / 62,830.00
Clean & Green
Inactive
Homestead Status
Active
Farmstead Status
Inactive
Lerta Amount
0
Lerta Expiration Year
0
Residential Data
Card 1
Style
BUNGALOW
Basement
FULL
Year Built
1882
Exterior Wall
ALUMINUM/VINYL
Total Living Area
1060
Full Baths
1
Half Baths
0
Fuel Type
GAS
Heating
CENTRAL
Heating System
FORCED AIR
Stories
1.0
Total Bedrooms
2
Total Family Rooms
0
Total Rooms
6
Fireplaces
0
Other Buildings & Yards
No OBY Data Found
Sales History
Sale Date
Type
Price
Book / Page
Other Info
3/8/2024
LAND & BUILDING
0
2024 / 003518
SPECIAL WARRANTY DEED
7/26/1996
0
0452 / 1978
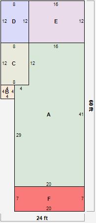
Parcel Sketches
Residential Card 1
A
MAIN
772 square feet
B
OFP OPEN FRAME PORCH
16 square feet
C
UNFIN BSMT BASEMENT UNFINISHED 1S FR ONE STORY FRAME
96 square feet
D
EFP ENCL FRAME PORCH
96 square feet
E
1S FR ONE STORY FRAME
192 square feet
F
OFP OPEN FRAME PORCH
140 square feet
Parcel Images
Please note:
this tab is for informational purposes only and may not show all delinquencies, see the Taxes tab for more accurate delinquent taxes due.