Elected Officials
Courts
Departments
Initiatives
Open Government
About
Login / Register
Home
/
Property & Tax Records
/
Property Records
/
Property & Tax Search
/
Parcel Profile
/
Print View
Search for Another Parcel
Parcel Profile
Historical Card
Sketches
Photos
Tax Map
Taxes
Print View
Print This Page
Address: 540 E 27 ST
Parcel: 18050068021800
Parcel Profile
Address
540 | E | 27 | ST
Street Status
PAVED | SIDEWALK
School District
CITY OF ERIE SCHOOL
Acreage
0.1313
Classification
R
Land Use Code
SINGLE FAMILY
Legal Description
540 E 27 ST 40 X 143
Square Feet
1663
Topo
LEVEL
Utility
ALL PUBLIC
Zoning
Please contact your municipal zoning officer
Deed Book
2011
Deed Page
005982
2025 Tax Values
Land Value / Taxable
17,700 / 17,700.00
Building Value / Taxable
29,920 / 29,920.00
Total Value / Taxable
47,620 / 47,620.00
Clean & Green
Inactive
Homestead Status
Inactive
Farmstead Status
Inactive
Lerta Amount
0
Lerta Expiration Year
0
Residential Data
Card 1
Style
OLD STYLE
Basement
FULL
Year Built
1882
Exterior Wall
COMPOSITION
Total Living Area
1663
Full Baths
1
Half Baths
0
Fuel Type
GAS
Heating
CENTRAL
Heating System
FORCED AIR
Stories
1.5
Total Bedrooms
4
Total Family Rooms
0
Total Rooms
7
Fireplaces
0
Other Buildings & Yards
No OBY Data Found
Sales History
Sale Date
Type
Price
Book / Page
Other Info
3/15/2011
LAND & BUILDING
18000
2011 / 005982
DEED
9/9/2010
LAND & BUILDING
0
2010 / 022262
SHERIFF'S DED
8/10/2001
0
0799 / 2270
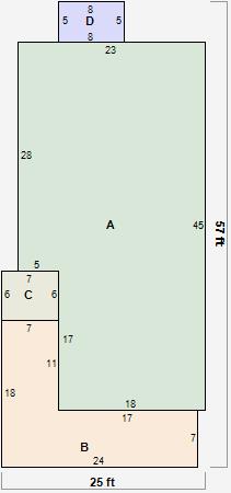
Parcel Sketches
Residential Card 1
A
MAIN
950 square feet
B
OFP OPEN FRAME PORCH
245 square feet
C
EFP ENCL FRAME PORCH
42 square feet
D
OFP OPEN FRAME PORCH
40 square feet
Parcel Images