Elected Officials
Courts
Departments
Initiatives
Open Government
About
Login / Register
Home
/
Property & Tax Records
/
Property Records
/
Property & Tax Search
/
Parcel Profile
/
Print View
Search for Another Parcel
Parcel Profile
Historical Card
Sketches
Photos
Tax Map
Taxes
Print View
Print This Page
Address: 517 E 28 ST
Parcel: 18050069021600
Parcel Profile
Address
517 | E | 28 | ST
Street Status
PAVED | SIDEWALK
School District
CITY OF ERIE SCHOOL
Acreage
0.1240
Classification
R
Land Use Code
SINGLE FAMILY
Legal Description
517 E 28 ST 40 X 135
Square Feet
1701
Topo
LEVEL
Utility
ALL PUBLIC
Zoning
Please contact your municipal zoning officer
Deed Book
2017
Deed Page
006772
2026 Tax Values
Land Value / Taxable
17,500 / 17,500.00
Building Value / Taxable
50,900 / 50,900.00
Total Value / Taxable
68,400 / 68,400.00
Clean & Green
Inactive
Homestead Status
Active
Farmstead Status
Inactive
Lerta Amount
0
Lerta Expiration Year
0
Residential Data
Card 1
Style
CAPE
Basement
FULL
Year Built
1941
Exterior Wall
MASONRY & FRAME
Total Living Area
1701
Full Baths
1
Half Baths
0
Fuel Type
GAS
Heating
CENTRAL A/C
Heating System
FORCED AIR
Stories
1.5
Total Bedrooms
3
Total Family Rooms
0
Total Rooms
6
Fireplaces
0
Other Buildings & Yards
Description
Built
Width
Length
Area
FRAME OR CB DETACHED GARAGE
1941
12
20
240
Sales History
Sale Date
Type
Price
Book / Page
Other Info
4/3/2017
LAND & BUILDING
65000
2017 / 006772
FIDUCIARY DEED
7/3/1986
0
1637 / 0011
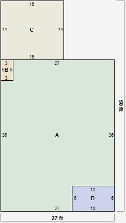
Parcel Sketches
Residential Card 1
A
MAIN
972 square feet
B
OMP OPEN MASONRY PORCH
15 square feet
C
EFP ENCL FRAME PORCH
210 square feet
D
UNFIN BSMT BASEMENT UNFINISHED OFP OPEN FRAME PORCH
60 square feet
Parcel Images
Please note:
this tab is for informational purposes only and may not show all delinquencies, see the Taxes tab for more accurate delinquent taxes due.