Elected Officials
Courts
Departments
Initiatives
Open Government
About
Login / Register
Home
/
Property & Tax Records
/
Property Records
/
Property & Tax Search
/
Parcel Profile
/
Print View
Search for Another Parcel
Parcel Profile
Historical Card
Sketches
Photos
Tax Map
Taxes
Print View
Print This Page
Address: 3002 ASH ST BLVD
Parcel: 18050070010700
Parcel Profile
Address
3002 | ASH ST | BLVD
Street Status
PAVED | SIDEWALK
School District
CITY OF ERIE SCHOOL
Acreage
0.0978
Classification
R
Land Use Code
SINGLE FAMILY
Legal Description
3002 ASH ST BLVD 35.5 X 120
Square Feet
1454
Topo
LEVEL
Utility
ALL PUBLIC
Zoning
Please contact your municipal zoning officer
Deed Book
0513
Deed Page
1026
2026 Tax Values
Land Value / Taxable
17,100 / 17,100.00
Building Value / Taxable
61,420 / 61,420.00
Total Value / Taxable
78,520 / 78,520.00
Clean & Green
Inactive
Homestead Status
Active
Farmstead Status
Inactive
Lerta Amount
0
Lerta Expiration Year
0
Residential Data
Card 1
Style
CAPE
Basement
FULL
Year Built
1931
Exterior Wall
FRAME
Total Living Area
1454
Full Baths
1
Half Baths
0
Fuel Type
GAS
Heating
CENTRAL A/C
Heating System
FORCED AIR
Stories
1.0
Total Bedrooms
2
Total Family Rooms
0
Total Rooms
6
Fireplaces
0
Other Buildings & Yards
Description
Built
Width
Length
Area
FRAME OR CB DETACHED GARAGE
1955
12
22
264
Sales History
Sale Date
Type
Price
Book / Page
Other Info
8/12/1997
0
0513 / 1026
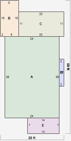
Parcel Sketches
Residential Card 1
A
MAIN
864 square feet
B
WDDCK WOOD DECKS
128 square feet
C
1S FR ONE STORY FRAME
220 square feet
D
FROVR FRAME OVERHANG
24 square feet
E
OFP OPEN FRAME PORCH
98 square feet
Parcel Images
Please note:
this tab is for informational purposes only and may not show all delinquencies, see the Taxes tab for more accurate delinquent taxes due.