Elected Officials
Courts
Departments
Initiatives
Open Government
About
Login / Register
Home
/
Property & Tax Records
/
Property Records
/
Property & Tax Search
/
Parcel Profile
/
Print View
Search for Another Parcel
Parcel Profile
Historical Card
Sketches
Photos
Tax Map
Taxes
Print View
Print This Page
Address: 3235 PINE AVE
Parcel: 18050071010200
Parcel Profile
Address
3235 | PINE | AVE
Street Status
PAVED | SIDEWALK
School District
CITY OF ERIE SCHOOL
Acreage
0.2309
Classification
R
Land Use Code
SINGLE FAMILY
Legal Description
3235 PINE AVE 60.97 X IRR
Square Feet
1725
Topo
LEVEL
Utility
ALL PUBLIC
Zoning
Please contact your municipal zoning officer
Deed Book
2025
Deed Page
007550
2026 Tax Values
Land Value / Taxable
17,300 / 17,300.00
Building Value / Taxable
53,400 / 53,400.00
Total Value / Taxable
70,700 / 70,700.00
Clean & Green
Inactive
Homestead Status
Inactive
Farmstead Status
Inactive
Lerta Amount
0
Lerta Expiration Year
0
Residential Data
Card 1
Style
OLD STYLE
Basement
FULL
Year Built
1887
Exterior Wall
ALUMINUM/VINYL
Total Living Area
1725
Full Baths
1
Half Baths
0
Fuel Type
GAS
Heating
CENTRAL
Heating System
FORCED AIR
Stories
2.0
Total Bedrooms
4
Total Family Rooms
0
Total Rooms
9
Fireplaces
0
Other Buildings & Yards
Description
Built
Width
Length
Area
FRAME OR CB DETACHED GARAGE
1986
14
34
476
Sales History
Sale Date
Type
Price
Book / Page
Other Info
5/13/2025
LAND & BUILDING
242222
2025 / 007550
SPECIAL WARRANTY DEED
3/8/2024
LAND & BUILDING
63000
2024 / 003479
SHERIFF'S DED
10/17/2014
LAND & BUILDING
0
2014 / 022292
QUIT CLAIM DEED
1/13/1997
0
0479 / 1152
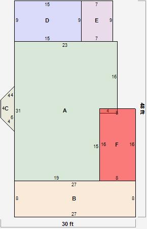
Parcel Sketches
Residential Card 1
A
MAIN
653 square feet
B
EFP ENCL FRAME PORCH
216 square feet
C
FRBAY FRAME BAY
21 square feet
D
1S FR ONE STORY FRAME 1S FR ONE STORY FRAME
135 square feet
E
EFP ENCL FRAME PORCH
63 square feet
F
1S FR ONE STORY FRAME
128 square feet
Parcel Images
Please note:
this tab is for informational purposes only and may not show all delinquencies, see the Taxes tab for more accurate delinquent taxes due.