Elected Officials
Courts
Departments
Initiatives
Open Government
About
Login / Register
Home
/
Property & Tax Records
/
Property Records
/
Property & Tax Search
/
Parcel Profile
/
Print View
Search for Another Parcel
Parcel Profile
Historical Card
Sketches
Photos
Tax Map
Taxes
Print View
Print This Page
Address: 3213 HOLMES ST
Parcel: 18050072012600
Parcel Profile
Address
3213 | HOLMES | ST
Street Status
PAVED | SIDEWALK
School District
CITY OF ERIE SCHOOL
Acreage
0.1819
Classification
R
Land Use Code
TWO FAMILY
Legal Description
3213 HOLMES ST IRREG
Square Feet
2421
Topo
LEVEL
Utility
ALL PUBLIC
Zoning
Please contact your municipal zoning officer
Deed Book
1222
Deed Page
1030
2026 Tax Values
Land Value / Taxable
18,400 / 18,400.00
Building Value / Taxable
65,200 / 65,200.00
Total Value / Taxable
83,600 / 83,600.00
Clean & Green
Inactive
Homestead Status
Active
Farmstead Status
Inactive
Lerta Amount
0.00
Lerta Expiration Year
2014
Residential Data
Card 1
Style
OLD STYLE
Basement
FULL
Year Built
1937
Exterior Wall
COMPOSITION
Total Living Area
2421
Full Baths
2
Half Baths
0
Fuel Type
GAS
Heating
CENTRAL
Heating System
FORCED AIR
Stories
2.0
Total Bedrooms
4
Total Family Rooms
0
Total Rooms
11
Fireplaces
0
Other Buildings & Yards
Description
Built
Width
Length
Area
FRAME OR CB DETACHED GARAGE
1940
12
20
240
Sales History
Sale Date
Type
Price
Book / Page
Other Info
4/4/2005
LAND & BUILDING
95000
1222 / 1030
DEED
8/23/2004
LAND & BUILDING
25000
1166 / 1565
DEED
8/23/2004
LAND & BUILDING
25000
1166 / 1541
DEED
2/11/1981
0
1412 / 0011
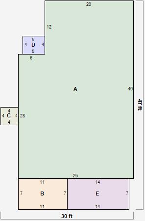
Parcel Sketches
Residential Card 1
A
MAIN
968 square feet
B
OFP OPEN FRAME PORCH
77 square feet
C
OFP OPEN FRAME PORCH
16 square feet
D
OFP OPEN FRAME PORCH
20 square feet
E
1S FR ONE STORY FRAME OFP OPEN FRAME PORCH
98 square feet
Parcel Images
Please note:
this tab is for informational purposes only and may not show all delinquencies, see the Taxes tab for more accurate delinquent taxes due.