Elected Officials
Courts
Departments
Initiatives
Open Government
About
Login / Register
Home
/
Property & Tax Records
/
Property Records
/
Property & Tax Search
/
Parcel Profile
/
Print View
Search for Another Parcel
Parcel Profile
Historical Card
Sketches
Photos
Tax Map
Taxes
Print View
Print This Page
Address: 3021 MARVIN AVE
Parcel: 18050074011700
Parcel Profile
Address
3021 | MARVIN | AVE
Street Status
PAVED | SIDEWALK
School District
CITY OF ERIE SCHOOL
Acreage
0.1317
Classification
R
Land Use Code
TWO FAMILY
Legal Description
3021 MARVIN AVE 40 X IRR
Square Feet
1906
Topo
LEVEL
Utility
ALL PUBLIC
Zoning
Please contact your municipal zoning officer
Deed Book
2010
Deed Page
001341
2026 Tax Values
Land Value / Taxable
17,700 / 17,700.00
Building Value / Taxable
40,590 / 40,590.00
Total Value / Taxable
58,290 / 58,290.00
Clean & Green
Inactive
Homestead Status
Inactive
Farmstead Status
Inactive
Lerta Amount
0
Lerta Expiration Year
0
Residential Data
Card 1
Style
CONVENTIONAL
Basement
FULL
Year Built
1902
Exterior Wall
ALUMINUM/VINYL
Total Living Area
1906
Full Baths
2
Half Baths
0
Fuel Type
GAS
Heating
CENTRAL
Heating System
FORCED AIR
Stories
2.0
Total Bedrooms
4
Total Family Rooms
0
Total Rooms
9
Fireplaces
0
Other Buildings & Yards
No OBY Data Found
Sales History
Sale Date
Type
Price
Book / Page
Other Info
1/19/2010
LAND & BUILDING
50000
2010 / 001341
DEED
12/6/1996
0
0474 / 1604
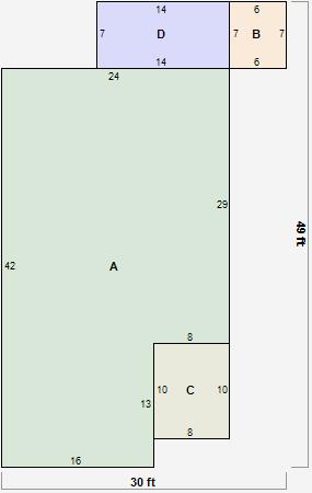
Parcel Sketches
Residential Card 1
A
MAIN
904 square feet
B
EFP ENCL FRAME PORCH
42 square feet
C
OFP OPEN FRAME PORCH
80 square feet
D
1S FR ONE STORY FRAME
98 square feet
Parcel Images
Please note:
this tab is for informational purposes only and may not show all delinquencies, see the Taxes tab for more accurate delinquent taxes due.