Elected Officials
Courts
Departments
Initiatives
Open Government
About
Login / Register
Home
/
Property & Tax Records
/
Property Records
/
Property & Tax Search
/
Parcel Profile
/
Print View
Search for Another Parcel
Parcel Profile
Historical Card
Sketches
Photos
Tax Map
Taxes
Print View
Print This Page
Address: 3214 MARVIN AVE
Parcel: 18050074020300
Parcel Profile
Address
3214 | MARVIN | AVE
Street Status
PAVED | SIDEWALK
School District
CITY OF ERIE SCHOOL
Acreage
0.2366
Classification
R
Land Use Code
SINGLE FAMILY
Legal Description
3214 MARVIN AVE 67.25 X 153.2
Square Feet
1609
Topo
LEVEL
Utility
ALL PUBLIC
Zoning
Please contact your municipal zoning officer
Deed Book
2024
Deed Page
010033
2026 Tax Values
Land Value / Taxable
19,300 / 19,300.00
Building Value / Taxable
50,600 / 50,600.00
Total Value / Taxable
69,900 / 69,900.00
Clean & Green
Inactive
Homestead Status
Active
Farmstead Status
Inactive
Lerta Amount
0
Lerta Expiration Year
0
Residential Data
Card 1
Style
OLD STYLE
Basement
FULL
Year Built
1925
Exterior Wall
COMPOSITION
Total Living Area
1609
Full Baths
1
Half Baths
1
Fuel Type
GAS
Heating
CENTRAL
Heating System
FORCED AIR
Stories
2.0
Total Bedrooms
3
Total Family Rooms
1
Total Rooms
7
Fireplaces
0
Other Buildings & Yards
Description
Built
Width
Length
Area
FRAME OR CB DETACHED GARAGE
1925
24
24
576
Sales History
Sale Date
Type
Price
Book / Page
Other Info
7/1/2024
LAND & BUILDING
151500
2024 / 010033
SPECIAL WARRANTY DEED
6/17/1991
0
0164 / 1362
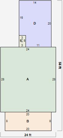
Parcel Sketches
Residential Card 1
A
MAIN
672 square feet
B
OFP OPEN FRAME PORCH
160 square feet
C
MA STOOP/TERR MAS STOOP
15 square feet
D
1S FR ONE STORY FRAME
265 square feet
Parcel Images
Please note:
this tab is for informational purposes only and may not show all delinquencies, see the Taxes tab for more accurate delinquent taxes due.