Elected Officials
Courts
Departments
Initiatives
Open Government
About
Login / Register
Home
/
Property & Tax Records
/
Property Records
/
Property & Tax Search
/
Parcel Profile
/
Print View
Search for Another Parcel
Parcel Profile
Historical Card
Sketches
Photos
Tax Map
Taxes
Print View
Print This Page
Address: 3011 OLD FRENCH RD
Parcel: 18050075021200
Parcel Profile
Address
3011 | OLD FRENCH | RD
Street Status
PAVED | SIDEWALK
School District
CITY OF ERIE SCHOOL
Acreage
0.2489
Classification
R
Land Use Code
SINGLE FAMILY
Legal Description
3011 OLD FRENCH RD 66.1 X IRR
Square Feet
1506
Topo
LEVEL
Utility
ALL PUBLIC
Zoning
Please contact your municipal zoning officer
Deed Book
1631
Deed Page
0503
2026 Tax Values
Land Value / Taxable
19,500 / 19,500.00
Building Value / Taxable
53,500 / 53,500.00
Total Value / Taxable
73,000 / 73,000.00
Clean & Green
Inactive
Homestead Status
Active
Farmstead Status
Inactive
Lerta Amount
0
Lerta Expiration Year
0
Residential Data
Card 1
Style
OLD STYLE
Basement
FULL
Year Built
1897
Exterior Wall
ALUMINUM/VINYL
Total Living Area
1506
Full Baths
1
Half Baths
1
Fuel Type
GAS
Heating
CENTRAL A/C
Heating System
FORCED AIR
Stories
2.0
Total Bedrooms
4
Total Family Rooms
0
Total Rooms
7
Fireplaces
1
Other Buildings & Yards
No OBY Data Found
Sales History
Sale Date
Type
Price
Book / Page
Other Info
6/2/1986
0
1631 / 0503
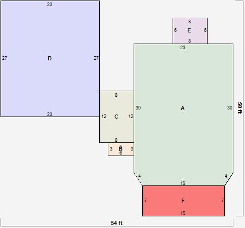
Parcel Sketches
Residential Card 1
A
MAIN
753 square feet
B
WDDCK WOOD DECKS
18 square feet
C
EMP ENCL MASONRY PORCH
96 square feet
D
FR GR FRAME GARAGE
621 square feet
E
MA_PT CONC/MAS PATIO
48 square feet
F
OMP OPEN MASONRY PORCH
133 square feet
Parcel Images
Please note:
this tab is for informational purposes only and may not show all delinquencies, see the Taxes tab for more accurate delinquent taxes due.