Elected Officials
Courts
Departments
Initiatives
Open Government
About
Login / Register
Home
/
Property & Tax Records
/
Property Records
/
Property & Tax Search
/
Parcel Profile
/
Print View
Search for Another Parcel
Parcel Profile
Historical Card
Sketches
Photos
Tax Map
Taxes
Print View
Print This Page
Address: 3015 OLD FRENCH RD
Parcel: 18050075021300
Parcel Profile
Address
3015 | OLD FRENCH | RD
Street Status
PAVED | SIDEWALK
School District
CITY OF ERIE SCHOOL
Acreage
0.2619
Classification
R
Land Use Code
TWO FAMILY
Legal Description
3015 OLD FRENCH 79.43X153.25IR
Square Feet
1504
Topo
LEVEL
Utility
ALL PUBLIC
Zoning
Please contact your municipal zoning officer
Deed Book
2021
Deed Page
022174
2026 Tax Values
Land Value / Taxable
19,600 / 19,600.00
Building Value / Taxable
38,700 / 38,700.00
Total Value / Taxable
58,300 / 58,300.00
Clean & Green
Inactive
Homestead Status
Inactive
Farmstead Status
Inactive
Lerta Amount
0
Lerta Expiration Year
0
Residential Data
Card 1
Style
OLD STYLE
Basement
PART
Year Built
1932
Exterior Wall
ALUMINUM/VINYL
Total Living Area
1504
Full Baths
2
Half Baths
0
Fuel Type
GAS
Heating
CENTRAL
Heating System
FORCED AIR
Stories
2.0
Total Bedrooms
6
Total Family Rooms
0
Total Rooms
10
Fireplaces
0
Other Buildings & Yards
No OBY Data Found
Sales History
Sale Date
Type
Price
Book / Page
Other Info
8/18/2021
LAND & BUILDING
49000
2021 / 022174
SPECIAL WARRANTY DEED
8/20/2014
LAND & BUILDING
40000
2014 / 017518
FIDUCIARY DEED
10/20/1959
0
0809 / 0263
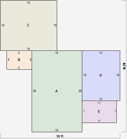
Parcel Sketches
Residential Card 1
A
MAIN
416 square feet
B
OFP OPEN FRAME PORCH
48 square feet
C
1S FR ONE STORY FRAME
288 square feet
D
1S FR ONE STORY FRAME 1S FR ONE STORY FRAME
192 square feet
E
OFP OPEN FRAME PORCH
77 square feet
Parcel Images
Please note:
this tab is for informational purposes only and may not show all delinquencies, see the Taxes tab for more accurate delinquent taxes due.