Elected Officials
Courts
Departments
Initiatives
Open Government
About
Login / Register
Home
/
Property & Tax Records
/
Property Records
/
Property & Tax Search
/
Parcel Profile
/
Print View
Search for Another Parcel
Parcel Profile
Historical Card
Sketches
Photos
Tax Map
Taxes
Print View
Print This Page
Address: 439 E 27 ST
Parcel: 18050077010500
Parcel Profile
Address
439 | E | 27 | ST
Street Status
PAVED | SIDEWALK
School District
CITY OF ERIE SCHOOL
Acreage
0.1860
Classification
R
Land Use Code
TWO FAMILY
Legal Description
439 E 27 ST 60 X 135
Square Feet
1887
Topo
LEVEL
Utility
ALL PUBLIC
Zoning
Please contact your municipal zoning officer
Deed Book
2016
Deed Page
012645
2026 Tax Values
Land Value / Taxable
18,500 / 18,500.00
Building Value / Taxable
18,090 / 18,090.00
Total Value / Taxable
36,590 / 36,590.00
Clean & Green
Inactive
Homestead Status
Inactive
Farmstead Status
Inactive
Lerta Amount
0
Lerta Expiration Year
0
Residential Data
Card 1
Style
OLD STYLE
Basement
FULL
Year Built
1900
Exterior Wall
FRAME
Total Living Area
1887
Full Baths
2
Half Baths
0
Fuel Type
GAS
Heating
NON CENTRAL
Heating System
NONE
Stories
1.5
Total Bedrooms
5
Total Family Rooms
0
Total Rooms
11
Fireplaces
1
Other Buildings & Yards
Description
Built
Width
Length
Area
FRAME OR CB DETACHED GARAGE
1916
20
20
400
Sales History
Sale Date
Type
Price
Book / Page
Other Info
6/20/2016
LAND & BUILDING
15000
2016 / 012645
DEED
12/3/2013
LAND & BUILDING
10000
2013 / 031375
FIDUCIARY DEED
7/26/1982
0
1464 / 0391
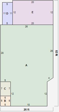
Parcel Sketches
Residential Card 1
A
MAIN
941 square feet
B
MA STOOP/TERR MAS STOOP
25 square feet
C
EFP ENCL FRAME PORCH
35 square feet
D
EFP ENCL FRAME PORCH
55 square feet
E
1S FR ONE STORY FRAME
240 square feet
Parcel Images
Please note:
this tab is for informational purposes only and may not show all delinquencies, see the Taxes tab for more accurate delinquent taxes due.