Elected Officials
Courts
Departments
Initiatives
Open Government
About
Login / Register
Home
/
Property & Tax Records
/
Property Records
/
Property & Tax Search
/
Parcel Profile
/
Print View
Search for Another Parcel
Parcel Profile
Historical Card
Sketches
Photos
Tax Map
Taxes
Print View
Print This Page
Address: 409 E 26 ST
Parcel: 18050077021400
Parcel Profile
Address
409 | E | 26 | ST
Street Status
PAVED | SIDEWALK
School District
CITY OF ERIE SCHOOL
Acreage
0.0981
Classification
R
Land Use Code
TWO FAMILY
Legal Description
409 E 26 ST 45 X 95
Square Feet
2386
Topo
LEVEL
Utility
ALL PUBLIC
Zoning
Please contact your municipal zoning officer
Deed Book
2013
Deed Page
020157
2026 Tax Values
Land Value / Taxable
5,400 / 5,400.00
Building Value / Taxable
43,900 / 43,900.00
Total Value / Taxable
49,300 / 49,300.00
Clean & Green
Inactive
Homestead Status
Active
Farmstead Status
Inactive
Lerta Amount
0
Lerta Expiration Year
0
Residential Data
Card 1
Style
OLD STYLE
Basement
FULL
Year Built
1921
Exterior Wall
BRICK
Total Living Area
2386
Full Baths
2
Half Baths
0
Fuel Type
GAS
Heating
CENTRAL
Heating System
FORCED AIR
Stories
2.0
Total Bedrooms
4
Total Family Rooms
0
Total Rooms
8
Fireplaces
0
Other Buildings & Yards
No OBY Data Found
Sales History
Sale Date
Type
Price
Book / Page
Other Info
8/1/2013
LAND & BUILDING
0
2013 / 020157
QUIT CLAIM DEED
12/5/2007
LAND & BUILDING
0
1464 / 0636
QUIT/CLAIM SURVIVORSHIP
3/16/1995
0
0376 / 0235
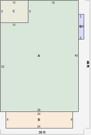
Parcel Sketches
Residential Card 1
A
MAIN
1040 square feet
B
1SMAS MASONRY 1SMAS MASONRY
144 square feet
C
UNFIN BSMT BASEMENT UNFINISHED EMP ENCL MASONRY PORCH EMP ENCL MASONRY PORCH
80 square feet
D
1SMAS MASONRY
18 square feet
Parcel Images
Please note:
this tab is for informational purposes only and may not show all delinquencies, see the Taxes tab for more accurate delinquent taxes due.