Elected Officials
Courts
Departments
Initiatives
Open Government
About
Login / Register
Home
/
Property & Tax Records
/
Property Records
/
Property & Tax Search
/
Parcel Profile
/
Print View
Search for Another Parcel
Parcel Profile
Historical Card
Sketches
Photos
Tax Map
Taxes
Print View
Print This Page
Address: 310 E 30 ST
Parcel: 18050079012800
Parcel Profile
Address
310 | E | 30 | ST
Street Status
PAVED | SIDEWALK
School District
CITY OF ERIE SCHOOL
Acreage
0.1641
Classification
R
Land Use Code
TWO FAMILY
Legal Description
310 E 30 ST 50 X 143
Square Feet
2613
Topo
LEVEL
Utility
ALL PUBLIC
Zoning
Please contact your municipal zoning officer
Deed Book
0939
Deed Page
1376
2026 Tax Values
Land Value / Taxable
18,200 / 18,200.00
Building Value / Taxable
35,020 / 35,020.00
Total Value / Taxable
53,220 / 53,220.00
Clean & Green
Inactive
Homestead Status
Inactive
Farmstead Status
Inactive
Lerta Amount
0
Lerta Expiration Year
0
Residential Data
Card 1
Style
OLD STYLE
Basement
FULL
Year Built
1863
Exterior Wall
COMPOSITION
Total Living Area
2613
Full Baths
2
Half Baths
0
Fuel Type
GAS
Heating
CENTRAL
Heating System
HOT WATER
Stories
2.0
Total Bedrooms
2
Total Family Rooms
0
Total Rooms
10
Fireplaces
0
Other Buildings & Yards
Description
Built
Width
Length
Area
FRAME OR CB DETACHED GARAGE
1900
30
20
600
Sales History
Sale Date
Type
Price
Book / Page
Other Info
10/30/2002
LAND & BUILDING
47000
0939 / 1376
4/29/1994
0
0331 / 1648
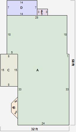
Parcel Sketches
Residential Card 1
A
MAIN
1296 square feet
B
FRBAY FRAME BAY
21 square feet
C
EFP ENCL FRAME PORCH
120 square feet
D
EFP ENCL FRAME PORCH EFP ENCL FRAME PORCH
98 square feet
E
EFP ENCL FRAME PORCH
15 square feet
Parcel Images
Please note:
this tab is for informational purposes only and may not show all delinquencies, see the Taxes tab for more accurate delinquent taxes due.