Elected Officials
Courts
Departments
Initiatives
Open Government
About
Login / Register
Home
/
Property & Tax Records
/
Property Records
/
Property & Tax Search
/
Parcel Profile
/
Print View
Search for Another Parcel
Parcel Profile
Historical Card
Sketches
Photos
Tax Map
Taxes
Print View
Print This Page
Address: 338 E 30 ST
Parcel: 18050079013400
Parcel Profile
Address
338 | E | 30 | ST
Street Status
PAVED | SIDEWALK
School District
CITY OF ERIE SCHOOL
Acreage
0.0951
Classification
R
Land Use Code
SINGLE FAMILY
Legal Description
338 E 30 ST 65 X 76.23 IRR
Square Feet
1176
Topo
LEVEL
Utility
ALL PUBLIC
Zoning
Please contact your municipal zoning officer
Deed Book
1445
Deed Page
0940
2026 Tax Values
Land Value / Taxable
17,000 / 17,000.00
Building Value / Taxable
43,000 / 43,000.00
Total Value / Taxable
60,000 / 60,000.00
Clean & Green
Inactive
Homestead Status
Active
Farmstead Status
Inactive
Lerta Amount
0
Lerta Expiration Year
0
Residential Data
Card 1
Style
OLD STYLE
Basement
FULL
Year Built
1913
Exterior Wall
ALUMINUM/VINYL
Total Living Area
1176
Full Baths
1
Half Baths
0
Fuel Type
GAS
Heating
CENTRAL A/C
Heating System
FORCED AIR
Stories
1.5
Total Bedrooms
3
Total Family Rooms
0
Total Rooms
6
Fireplaces
0
Other Buildings & Yards
Description
Built
Width
Length
Area
FRAME OR CB DETACHED GARAGE
2006
12
24
288
Sales History
Sale Date
Type
Price
Book / Page
Other Info
9/6/2007
LAND & BUILDING
2750
1445 / 0940
DEED
7/10/1992
26900
0220 / 2319
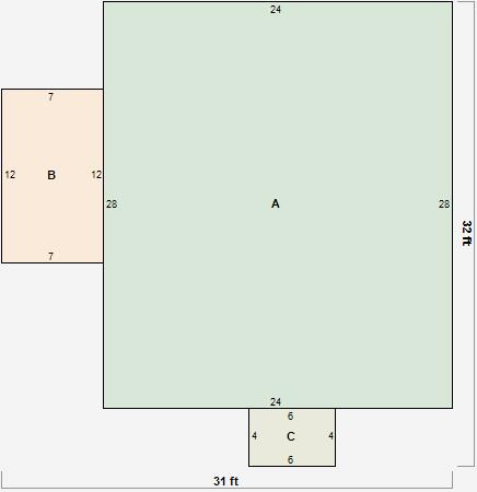
Parcel Sketches
Residential Card 1
A
MAIN
672 square feet
B
EFP ENCL FRAME PORCH
84 square feet
C
MA STOOP/TERR MAS STOOP
24 square feet
Parcel Images
Please note:
this tab is for informational purposes only and may not show all delinquencies, see the Taxes tab for more accurate delinquent taxes due.