Elected Officials
Courts
Departments
Initiatives
Open Government
About
Login / Register
Home
/
Property & Tax Records
/
Property Records
/
Property & Tax Search
/
Parcel Profile
/
Print View
Search for Another Parcel
Parcel Profile
Historical Card
Sketches
Photos
Tax Map
Taxes
Print View
Print This Page
Address: 307 E 28 ST
Parcel: 18050079021700
Parcel Profile
Address
307 | E | 28 | ST
Street Status
PAVED | SIDEWALK
School District
CITY OF ERIE SCHOOL
Acreage
0.1581
Classification
R
Land Use Code
SINGLE FAMILY
Legal Description
307 E 28 ST 51 X 135
Square Feet
1728
Topo
LEVEL
Utility
ALL PUBLIC
Zoning
Please contact your municipal zoning officer
Deed Book
2022
Deed Page
023201
2026 Tax Values
Land Value / Taxable
18,100 / 18,100.00
Building Value / Taxable
39,900 / 39,900.00
Total Value / Taxable
58,000 / 58,000.00
Clean & Green
Inactive
Homestead Status
Inactive
Farmstead Status
Inactive
Lerta Amount
0
Lerta Expiration Year
0
Residential Data
Card 1
Style
OLD STYLE
Basement
FULL
Year Built
1863
Exterior Wall
FRAME
Total Living Area
1728
Full Baths
1
Half Baths
0
Fuel Type
GAS
Heating
CENTRAL
Heating System
FORCED AIR
Stories
2.0
Total Bedrooms
3
Total Family Rooms
0
Total Rooms
6
Fireplaces
0
Other Buildings & Yards
No OBY Data Found
Sales History
Sale Date
Type
Price
Book / Page
Other Info
10/27/2022
LAND & BUILDING
45000
2022 / 023201
SPECIAL WARRANTY DEED
6/28/1971
LAND & BUILDING
17500
1046 / 0585
DEED
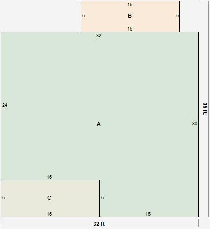
Parcel Sketches
Residential Card 1
A
MAIN
864 square feet
B
MA_PT CONC/MAS PATIO
80 square feet
C
OFP OPEN FRAME PORCH
96 square feet
Parcel Images
Please note:
this tab is for informational purposes only and may not show all delinquencies, see the Taxes tab for more accurate delinquent taxes due.