Elected Officials
Courts
Departments
Initiatives
Open Government
About
Login / Register
Home
/
Property & Tax Records
/
Property Records
/
Property & Tax Search
/
Parcel Profile
/
Print View
Search for Another Parcel
Parcel Profile
Historical Card
Sketches
Photos
Tax Map
Taxes
Print View
Print This Page
Address: 2805 HOLLAND ST
Parcel: 18050082022700
Parcel Profile
Address
2805 | HOLLAND | ST
Street Status
PAVED | SIDEWALK
School District
CITY OF ERIE SCHOOL
Acreage
0.0683
Classification
R
Land Use Code
SINGLE FAMILY
Legal Description
2805 HOLLAND ST 35 X 85
Square Feet
1832
Topo
LEVEL
Utility
ALL PUBLIC
Zoning
Please contact your municipal zoning officer
Deed Book
2024
Deed Page
016912
2026 Tax Values
Land Value / Taxable
16,500 / 16,500.00
Building Value / Taxable
51,600 / 51,600.00
Total Value / Taxable
68,100 / 68,100.00
Clean & Green
Inactive
Homestead Status
Active
Farmstead Status
Inactive
Lerta Amount
0
Lerta Expiration Year
0
Residential Data
Card 1
Style
OLD STYLE
Basement
FULL
Year Built
1915
Exterior Wall
FRAME
Total Living Area
1832
Full Baths
2
Half Baths
0
Fuel Type
GAS
Heating
CENTRAL
Heating System
FORCED AIR
Stories
2.0
Total Bedrooms
3
Total Family Rooms
0
Total Rooms
7
Fireplaces
0
Other Buildings & Yards
No OBY Data Found
Sales History
Sale Date
Type
Price
Book / Page
Other Info
10/17/2024
LAND & BUILDING
126900
2024 / 016912
SPECIAL WARRANTY DEED
5/16/2024
LAND & BUILDING
61000
2024 / 007352
SPECIAL WARRANTY DEED
5/31/2023
LAND & BUILDING
34000
2023 / 008323
DEED
12/5/1994
0
0365 / 0518
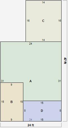
Parcel Sketches
Residential Card 1
A
MAIN
744 square feet
B
EFP ENCL FRAME PORCH
135 square feet
C
1S FR ONE STORY FRAME
224 square feet
D
1S FR ONE STORY FRAME
120 square feet
Parcel Images
Please note:
this tab is for informational purposes only and may not show all delinquencies, see the Taxes tab for more accurate delinquent taxes due.