Elected Officials
Courts
Departments
Initiatives
Open Government
About
Login / Register
Home
/
Property & Tax Records
/
Property Records
/
Property & Tax Search
/
Parcel Profile
/
Print View
Search for Another Parcel
Parcel Profile
Historical Card
Sketches
Photos
Tax Map
Taxes
Print View
Print This Page
Address: 243 E 30 ST
Parcel: 18050083020900
Parcel Profile
Address
243 | E | 30 | ST
Street Status
PAVED | SIDEWALK
School District
CITY OF ERIE SCHOOL
Acreage
0.1286
Classification
R
Land Use Code
TWO FAMILY
Legal Description
243 E 30 ST 40 X 140
Square Feet
2268
Topo
LEVEL
Utility
ALL PUBLIC
Zoning
Please contact your municipal zoning officer
Deed Book
2022
Deed Page
022463
2026 Tax Values
Land Value / Taxable
17,600 / 17,600.00
Building Value / Taxable
58,300 / 58,300.00
Total Value / Taxable
75,900 / 75,900.00
Clean & Green
Inactive
Homestead Status
Inactive
Farmstead Status
Inactive
Lerta Amount
0
Lerta Expiration Year
0
Residential Data
Card 1
Style
OLD STYLE
Basement
FULL
Year Built
1926
Exterior Wall
BRICK
Total Living Area
2268
Full Baths
2
Half Baths
0
Fuel Type
GAS
Heating
CENTRAL
Heating System
FORCED AIR
Stories
2.0
Total Bedrooms
4
Total Family Rooms
0
Total Rooms
11
Fireplaces
0
Other Buildings & Yards
No OBY Data Found
Sales History
Sale Date
Type
Price
Book / Page
Other Info
10/17/2022
LAND & BUILDING
106000
2022 / 022463
SPECIAL WARRANTY DEED
5/20/2009
LAND & BUILDING
77000
1563 / 0003
DEED
5/20/2005
LAND & BUILDING
60000
1235 / 1586
WARRANTY/SURVIVORSHIP DEED
3/11/2003
LAND & BUILDING
46000
984 / 1937
12/17/2002
LAND & BUILDING
0
957 / 1860
AFFIDAVIT
10/2/2002
LAND & BUILDING
0
928 / 46
SHERIFF'S DED
11/14/1997
0
0529 / 1165
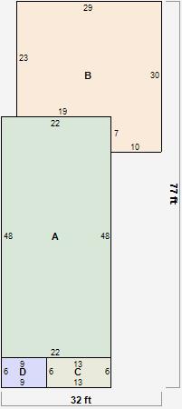
Parcel Sketches
Residential Card 1
A
MAIN
1056 square feet
B
WDDCK WOOD DECKS
737 square feet
C
UNFIN BSMT BASEMENT UNFINISHED 1SMAS MASONRY 1SMAS MASONRY
78 square feet
D
OMP OPEN MASONRY PORCH OMP OPEN MASONRY PORCH
54 square feet
Parcel Images
Please note:
this tab is for informational purposes only and may not show all delinquencies, see the Taxes tab for more accurate delinquent taxes due.