Elected Officials
Courts
Departments
Initiatives
Open Government
About
Login / Register
Home
/
Property & Tax Records
/
Property Records
/
Property & Tax Search
/
Parcel Profile
/
Print View
Search for Another Parcel
Parcel Profile
Historical Card
Sketches
Photos
Tax Map
Taxes
Print View
Print This Page
Address: 149 E 30 ST
Parcel: 18050086020900
Parcel Profile
Address
149 | E | 30 | ST
Street Status
PAVED
School District
CITY OF ERIE SCHOOL
Acreage
0.1077
Classification
R
Land Use Code
SINGLE FAMILY
Legal Description
149 E 30 ST 33.5 X 140
Square Feet
1236
Topo
LEVEL
Utility
ALL PUBLIC
Zoning
Please contact your municipal zoning officer
Deed Book
2019
Deed Page
005689
2026 Tax Values
Land Value / Taxable
17,300 / 17,300.00
Building Value / Taxable
44,500 / 44,500.00
Total Value / Taxable
61,800 / 61,800.00
Clean & Green
Inactive
Homestead Status
Active
Farmstead Status
Inactive
Lerta Amount
0
Lerta Expiration Year
0
Residential Data
Card 1
Style
OLD STYLE
Basement
FULL
Year Built
1920
Exterior Wall
ALUMINUM/VINYL
Total Living Area
1236
Full Baths
1
Half Baths
0
Fuel Type
GAS
Heating
CENTRAL
Heating System
FORCED AIR
Stories
2.0
Total Bedrooms
3
Total Family Rooms
0
Total Rooms
6
Fireplaces
0
Other Buildings & Yards
Description
Built
Width
Length
Area
FRAME OR CB DETACHED GARAGE
1920
22
20
440
Sales History
Sale Date
Type
Price
Book / Page
Other Info
4/2/2019
LAND & BUILDING
40000
2019 / 005689
SPECIAL WARRANTY DEED
1/31/2008
LAND & BUILDING
0
1474 / 0141
WARRANTY/SURVIVORSHIP DEED
1/1/1967
0
967 / 1
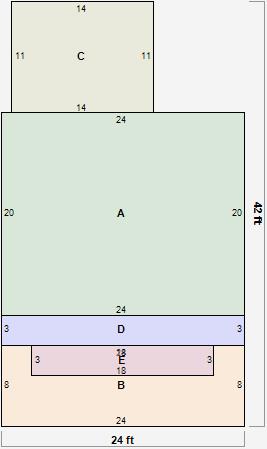
Parcel Sketches
Residential Card 1
A
MAIN
480 square feet
B
OFP OPEN FRAME PORCH
192 square feet
C
1S FR ONE STORY FRAME
154 square feet
D
UNFIN BSMT BASEMENT UNFINISHED 1S FR ONE STORY FRAME AT FN ATTIC-FINISHED
72 square feet
E
OFP OPEN FRAME PORCH AT FN ATTIC-FINISHED
54 square feet
Parcel Images
Please note:
this tab is for informational purposes only and may not show all delinquencies, see the Taxes tab for more accurate delinquent taxes due.