Elected Officials
Courts
Departments
Initiatives
Open Government
About
Login / Register
Home
/
Property & Tax Records
/
Property Records
/
Property & Tax Search
/
Parcel Profile
/
Print View
Search for Another Parcel
Parcel Profile
Historical Card
Sketches
Photos
Tax Map
Taxes
Print View
Print This Page
Address: 128 HILL RD
Parcel: 18050089021800
Parcel Profile
Address
128 | HILL | RD
Street Status
PAVED | SIDEWALK
School District
CITY OF ERIE SCHOOL
Acreage
0.1530
Classification
R
Land Use Code
SINGLE FAMILY
Legal Description
128 HILL RD 53 X IRR
Square Feet
1117
Topo
STEEP
Utility
ALL PUBLIC
Zoning
Please contact your municipal zoning officer
Deed Book
1472
Deed Page
0206
2025 Tax Values
Land Value / Taxable
18,000 / 18,000.00
Building Value / Taxable
28,000 / 28,000.00
Total Value / Taxable
46,000 / 46,000.00
Clean & Green
Inactive
Homestead Status
Inactive
Farmstead Status
Inactive
Lerta Amount
0
Lerta Expiration Year
0
Residential Data
Card 1
Style
BUNGALOW
Basement
PART
Year Built
1862
Exterior Wall
COMPOSITION
Total Living Area
1117
Full Baths
1
Half Baths
0
Fuel Type
GAS
Heating
CENTRAL
Heating System
FORCED AIR
Stories
1.5
Total Bedrooms
2
Total Family Rooms
0
Total Rooms
7
Fireplaces
0
Other Buildings & Yards
No OBY Data Found
Sales History
Sale Date
Type
Price
Book / Page
Other Info
1/18/2008
LAND & BUILDING
0
1472 / 0206
QUIT CLAIM DEED
7/20/2006
LAND & BUILDING
27500
1346 / 0257
WARRANTY/SURVIVORSHIP DEED
5/19/2004
LAND & BUILDING
21000
1136 / 1664
WARRANTY/SURVIVORSHIP DEED
8/21/1970
0
1028 / 0230
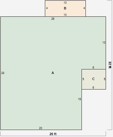
Parcel Sketches
Residential Card 1
A
MAIN
638 square feet
B
EFP ENCL FRAME PORCH
40 square feet
C
OFP OPEN FRAME PORCH
30 square feet
Parcel Images