Elected Officials
Courts
Departments
Initiatives
Open Government
About
Login / Register
Home
/
Property & Tax Records
/
Property Records
/
Property & Tax Search
/
Parcel Profile
/
Print View
Search for Another Parcel
Parcel Profile
Historical Card
Sketches
Photos
Tax Map
Taxes
Print View
Print This Page
Address: 116 HILL RD
Parcel: 18050089022300
Parcel Profile
Address
116 | HILL | RD
Street Status
PAVED | SIDEWALK
School District
CITY OF ERIE SCHOOL
Acreage
0.1014
Classification
R
Land Use Code
TWO FAMILY
Legal Description
116 HILL RD 40 X 125
Square Feet
1476
Topo
BELOW STREET
Utility
ALL PUBLIC
Zoning
Please contact your municipal zoning officer
Deed Book
2020
Deed Page
019969
2026 Tax Values
Land Value / Taxable
17,100 / 17,100.00
Building Value / Taxable
26,500 / 26,500.00
Total Value / Taxable
43,600 / 43,600.00
Clean & Green
Inactive
Homestead Status
Inactive
Farmstead Status
Inactive
Lerta Amount
0
Lerta Expiration Year
0
Residential Data
Card 1
Style
OLD STYLE
Basement
FULL
Year Built
1912
Exterior Wall
ALUMINUM/VINYL
Total Living Area
1476
Full Baths
1
Half Baths
1
Fuel Type
GAS
Heating
CENTRAL
Heating System
FORCED AIR
Stories
1.5
Total Bedrooms
2
Total Family Rooms
0
Total Rooms
9
Fireplaces
0
Other Buildings & Yards
No OBY Data Found
Sales History
Sale Date
Type
Price
Book / Page
Other Info
9/29/2020
LAND & BUILDING
34800
2020 / 019969
SPECIAL WARRANTY DEED
10/26/2005
LAND & BUILDING
19500
1281 / 1791
WARRANTY/SURVIVORSHIP DEED
8/25/2003
LAND & BUILDING
24000
1055 / 1241
SPECIAL WARRANTY DEED
2/21/1974
0
1114 / 0216
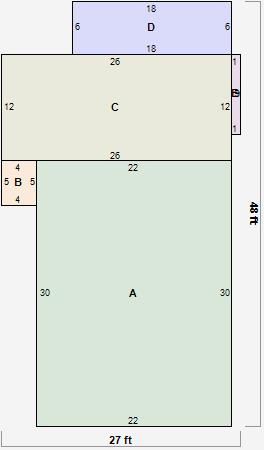
Parcel Sketches
Residential Card 1
A
MAIN
660 square feet
B
EFP ENCL FRAME PORCH
20 square feet
C
1S FR ONE STORY FRAME
312 square feet
D
EFP ENCL FRAME PORCH
108 square feet
E
FROVR FRAME OVERHANG
9 square feet
Parcel Images
Please note:
this tab is for informational purposes only and may not show all delinquencies, see the Taxes tab for more accurate delinquent taxes due.