Elected Officials
Courts
Departments
Initiatives
Open Government
About
Login / Register
Home
/
Property & Tax Records
/
Property Records
/
Property & Tax Search
/
Parcel Profile
/
Print View
Search for Another Parcel
Parcel Profile
Historical Card
Sketches
Photos
Tax Map
Taxes
Print View
Print This Page
Address: 2653 PEACH ST
Parcel: 18050090012800
Parcel Profile
Address
2653 | PEACH | ST
Street Status
PAVED | SIDEWALK
School District
CITY OF ERIE SCHOOL
Acreage
0.0690
Classification
R
Land Use Code
SINGLE FAMILY
Legal Description
2653 PEACH ST 30.04 X 106.04 IRR
Square Feet
924
Topo
LEVEL
Utility
ALL PUBLIC
Zoning
Please contact your municipal zoning officer
Deed Book
2016
Deed Page
018342
2026 Tax Values
Land Value / Taxable
16,600 / 16,600.00
Building Value / Taxable
22,100 / 22,100.00
Total Value / Taxable
38,700 / 38,700.00
Clean & Green
Inactive
Homestead Status
Inactive
Farmstead Status
Inactive
Lerta Amount
0
Lerta Expiration Year
0
Residential Data
Card 1
Style
BUNGALOW
Basement
FULL
Year Built
1873
Exterior Wall
FRAME
Total Living Area
924
Full Baths
1
Half Baths
0
Fuel Type
GAS
Heating
CENTRAL
Heating System
FORCED AIR
Stories
1.0
Total Bedrooms
2
Total Family Rooms
0
Total Rooms
5
Fireplaces
0
Other Buildings & Yards
No OBY Data Found
Sales History
Sale Date
Type
Price
Book / Page
Other Info
8/25/2016
LAND & BUILDING
7000
2016 / 018342
8/25/2016
LAND & BUILDING
7000
2016 / 01342
SPECIAL WARRANTY DEED
3/26/2014
LAND & BUILDING
0
2014 / 005466
TAX DEED
2/7/1994
0
0318 / 0422
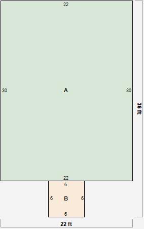
Parcel Sketches
Residential Card 1
A
MAIN
660 square feet
B
MA STOOP/TERR MAS STOOP
36 square feet
Parcel Images
Please note:
this tab is for informational purposes only and may not show all delinquencies, see the Taxes tab for more accurate delinquent taxes due.