Elected Officials
Courts
Departments
Initiatives
Open Government
About
Login / Register
Home
/
Property & Tax Records
/
Property Records
/
Property & Tax Search
/
Parcel Profile
/
Print View
Search for Another Parcel
Parcel Profile
Historical Card
Sketches
Photos
Tax Map
Taxes
Print View
Print This Page
Address: 38 W 32 ST
Parcel: 18050091011500
Parcel Profile
Address
38 | W | 32 | ST
Street Status
PAVED | SIDEWALK
School District
CITY OF ERIE SCHOOL
Acreage
0.1504
Classification
R
Land Use Code
SINGLE FAMILY
Legal Description
38 W 32 ST 59.15 X IRR
Square Feet
1278
Topo
ABOVE STREET
Utility
ALL PUBLIC
Zoning
Please contact your municipal zoning officer
Deed Book
1579
Deed Page
0236
2025 Tax Values
Land Value / Taxable
17,900 / 17,900.00
Building Value / Taxable
51,170 / 51,170.00
Total Value / Taxable
69,070 / 69,070.00
Clean & Green
Inactive
Homestead Status
Active
Farmstead Status
Inactive
Lerta Amount
0
Lerta Expiration Year
0
Residential Data
Card 1
Style
CAPE
Basement
FULL
Year Built
1953
Exterior Wall
ALUMINUM/VINYL
Total Living Area
1278
Full Baths
1
Half Baths
1
Fuel Type
GAS
Heating
CENTRAL A/C
Heating System
FORCED AIR
Stories
1.0
Total Bedrooms
2
Total Family Rooms
0
Total Rooms
5
Fireplaces
0
Other Buildings & Yards
No OBY Data Found
Sales History
Sale Date
Type
Price
Book / Page
Other Info
7/24/2009
LAND & BUILDING
71000
1579 / 0236
DEED
6/11/1999
LAND & BUILDING
59900
642 / 1574
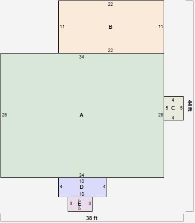
Parcel Sketches
Residential Card 1
A
MAIN
884 square feet
B
MA_PT CONC/MAS PATIO
242 square feet
C
OFP OPEN FRAME PORCH
20 square feet
D
1S FR ONE STORY FRAME
40 square feet
E
MA STOOP/TERR MAS STOOP
15 square feet
Parcel Images