Elected Officials
Courts
Departments
Initiatives
Open Government
About
Login / Register
Home
/
Property & Tax Records
/
Property Records
/
Property & Tax Search
/
Parcel Profile
/
Print View
Search for Another Parcel
Parcel Profile
Historical Card
Sketches
Photos
Tax Map
Taxes
Print View
Print This Page
Address: 3204 OLD FRENCH RD
Parcel: 18050092010500
Parcel Profile
Address
3204 | OLD FRENCH | RD
Street Status
PAVED
School District
CITY OF ERIE SCHOOL
Acreage
0.1466
Classification
R
Land Use Code
SINGLE FAMILY
Legal Description
3204 OLD FRENCH RD IRR
Square Feet
1822
Topo
LEVEL
Utility
ALL PUBLIC
Zoning
Please contact your municipal zoning officer
Deed Book
1308
Deed Page
0063
2026 Tax Values
Land Value / Taxable
18,700 / 18,700.00
Building Value / Taxable
58,300 / 58,300.00
Total Value / Taxable
77,000 / 77,000.00
Clean & Green
Inactive
Homestead Status
Active
Farmstead Status
Inactive
Lerta Amount
0.00
Lerta Expiration Year
2014
Residential Data
Card 1
Style
OLD STYLE
Basement
FULL
Year Built
1888
Exterior Wall
ALUMINUM/VINYL
Total Living Area
1822
Full Baths
2
Half Baths
0
Fuel Type
GAS
Heating
CENTRAL A/C
Heating System
FORCED AIR
Stories
1.5
Total Bedrooms
4
Total Family Rooms
0
Total Rooms
7
Fireplaces
0
Other Buildings & Yards
Description
Built
Width
Length
Area
BRICK OR STONE DETACHED GAR.
1959
24
24
576
Sales History
Sale Date
Type
Price
Book / Page
Other Info
6/7/1978
0
1308 / 0063
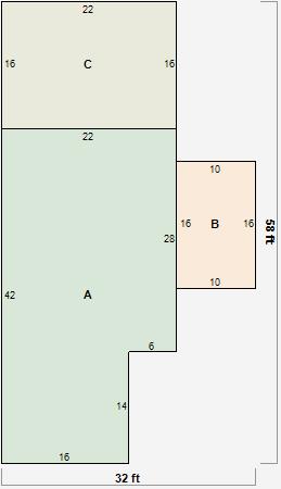
Parcel Sketches
Residential Card 1
A
MAIN
840 square feet
B
MA_PT CONC/MAS PATIO CANPY CANOPY
160 square feet
C
1S FR ONE STORY FRAME
352 square feet
Parcel Images
Please note:
this tab is for informational purposes only and may not show all delinquencies, see the Taxes tab for more accurate delinquent taxes due.