Elected Officials
Courts
Departments
Initiatives
Open Government
About
Login / Register
Home
/
Property & Tax Records
/
Property Records
/
Property & Tax Search
/
Parcel Profile
/
Print View
Search for Another Parcel
Parcel Profile
Historical Card
Sketches
Photos
Tax Map
Taxes
Print View
Print This Page
Address: 2305 MCKINLEY AVE
Parcel: 18050093020200
Parcel Profile
Address
2305 | MCKINLEY | AVE
Street Status
PAVED | SIDEWALK
School District
CITY OF ERIE SCHOOL
Acreage
0.1163
Classification
R
Land Use Code
SINGLE FAMILY
Legal Description
2305 MCKINLEY AVE 40 X IRR
Square Feet
1342
Topo
LEVEL
Utility
ALL PUBLIC
Zoning
Please contact your municipal zoning officer
Deed Book
0416
Deed Page
0177
2026 Tax Values
Land Value / Taxable
5,700 / 5,700.00
Building Value / Taxable
30,600 / 30,600.00
Total Value / Taxable
36,300 / 36,300.00
Clean & Green
Inactive
Homestead Status
Inactive
Farmstead Status
Inactive
Lerta Amount
0
Lerta Expiration Year
0
Residential Data
Card 1
Style
OLD STYLE
Basement
FULL
Year Built
1903
Exterior Wall
ALUMINUM/VINYL
Total Living Area
1342
Full Baths
1
Half Baths
0
Fuel Type
GAS
Heating
CENTRAL
Heating System
FORCED AIR
Stories
1.5
Total Bedrooms
4
Total Family Rooms
0
Total Rooms
8
Fireplaces
0
Other Buildings & Yards
Description
Built
Width
Length
Area
FRAME OR CB DETACHED GARAGE
1948
19
12
228
Sales History
Sale Date
Type
Price
Book / Page
Other Info
12/6/1995
0
0416 / 0177
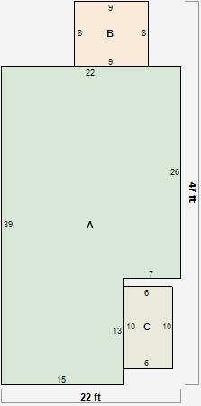
Parcel Sketches
Residential Card 1
A
MAIN
767 square feet
B
EFP ENCL FRAME PORCH
72 square feet
C
OFP OPEN FRAME PORCH
60 square feet
Parcel Images
Please note:
this tab is for informational purposes only and may not show all delinquencies, see the Taxes tab for more accurate delinquent taxes due.